
武汉 · 锦绣年华
Wuhan · Jinxiunianhua
中国,武汉
Wuhan, China
“‘底盘’作为高密度社区的核心载体,其价值不仅在于‘收纳功能’,更在于通过空间缝合,化解地块割裂、功能混杂的先天矛盾,构建统一的社区秩序。”
——《当代社区规划:从功能分区到空间共生》
在武汉青山滨江这片兼具长江景观与工业文化记忆的土地上,开发并未以割裂的方式重构空间,而是以“超级底盘为骨、海派文脉为魂”的设计逻辑,在滨江城市肌理中续写现代居住的新叙事。其核心在于通过空间秩序的重构,破解地块被道路割裂的局限,以文化转译激活场所精神,最终实现“功能复合、生态立体、人文温暖的高端社区理想”,为滨江复合型社区开发提供了可落地的实践范式。

鸟瞰效果图
一、底盘重构+双区联动:空间秩序的垂直革新
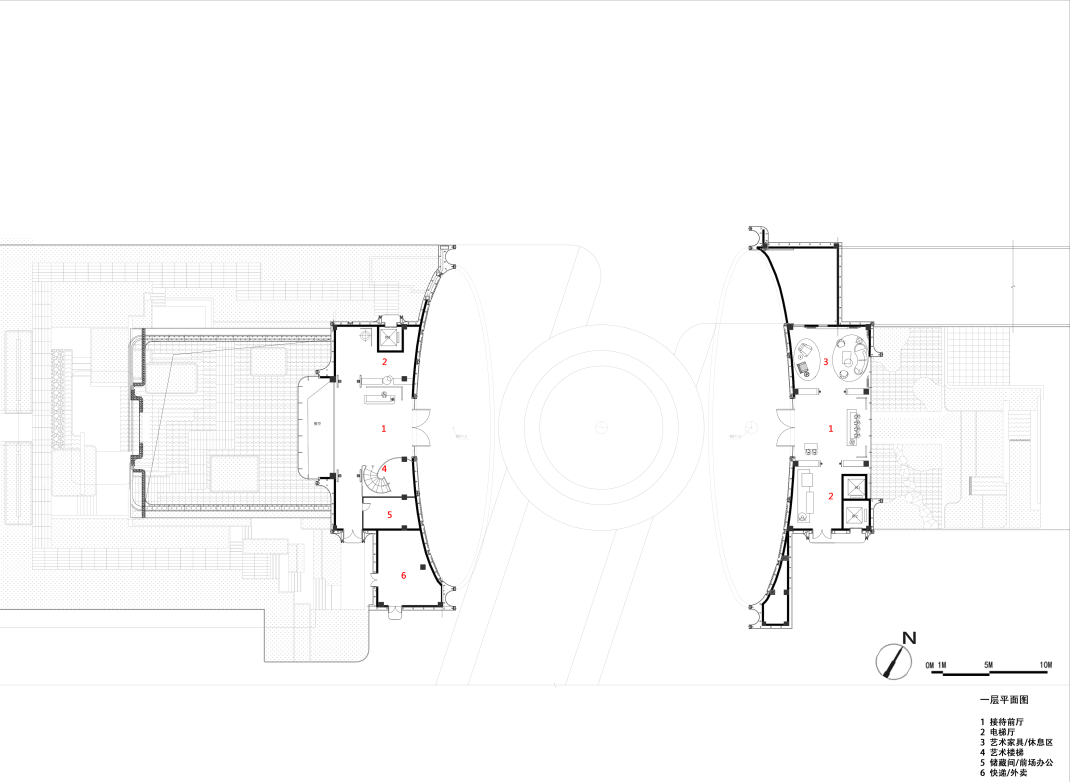
与传统社区平面化功能散落的布局模式不同,该项目以“超级底盘”为核心设计载体,通过“垂直分层”的空间策略,重塑高密度滨江区域的居住秩序。设计将地面一层整体抬升,构建“地下—底层—上层”的三级功能体系:地下空间整合车库与地下大堂,形成富有体验感的归家流线;抬升后的底层,集中布局社区商业、物业配套、变配电房等功能性设施,将潜在干扰因素有效“收纳”,避免对居住空间的环境侵占;上层则纯粹保留住宅与泛会所功能,居民通过专属电梯直达,实现“居住场景—服务功能”的物理隔离与流线分离。

沿街夜景效果图
这种设计逻辑的深层价值,在于对滨江地块被规划道路割裂划分为东西两区,且存在进深不均匀、日照条件受限等问题的高效回应。“超级底盘”不仅通过垂直整合化解了平面功能混杂的矛盾,更依托底盘结构构建了“双区联动”的衔接通道——在道路下方打造地下鎏金会所,既承担接待、私宴等高端社交功能,又作为东西地块的“结构纽带”,配合地上环抱式对称大门,形成“地下贯通 + 地上呼应”的空间缝合体系,彻底破解了地块割裂的先天局限,实现了空间资源的最大化利用。

鸟瞰效果图

双区联动剖面图

入口实景图
二、生态织补:立体绿化的多维渗透
滨江社区的生态价值,从来不止于“景观装饰”,而在于人与自然的日常对话。设计依托超级底盘的抬升结构,构建“地下庭院—地面景观带—架空层绿化”的立体生态网络,将长江岸线的自然禀赋与社区空间深度融合。地下会所设置南北双庭院,通过通透的玻璃幕墙引入江风与自然光,藤蔓缠绕的庭院墙面与错落灌木消解了地下空间的封闭感;地面层沿临江大道布局景观带,结合武九铁路文化长廊的历史肌理,种植以乡土植物为主的群落,形成“江滩公园—社区景观—铁路长廊”的生态衔接;架空层周边点缀口袋花园,使老人在棋牌区休憩时可俯瞰绿意,儿童在活动区玩耍时能触摸自然,实现生态与生活场景的无缝嵌套。


立体绿化实景图
这种立体绿化设计,打破了传统社区地面绿化单一化的局限,更暗合武汉“江城”的地域特质——以“分层植绿”模拟江岸阶地的自然形态,让社区生态成为长江岸线的微观延伸。绿化体系与归家流线紧密结合,居民从地下车库走向入户大堂的途中,会依次经过地下庭院的绿植、地面景观的花木、架空层的盆栽,每一段行程都有自然相伴。这种“沉浸式生态体验”,正是滨江社区最珍贵的居住底色。

庭院绿化效果图

庭院绿化实景图
三、文脉转译:海派基因的当代表达
在武汉这座九省通衢的城市里,居住文化带着兼容并蓄的特质。设计将海派文化作为线索,在滨江空间中书写“东方美学与西方格调”的对话。从材质、形态到色彩,完成对海派风格的当代转译:立面以海派经典的弧与拱券为基础语汇,大面弧形石材搭配精致金属线条,再现老上海洋房的优雅质感;色彩上采用“外部江景蓝绿色—室内深色木色”的过渡,从公共空间到私家庭院,色调逐渐温润,营造“归家即放松”的氛围;细节处提取大华集团“华”字标识,演变出“华之柱”“华之纹”专属符号——“华之柱”以H形为原型,采用开缝工艺与鎏金装饰,立在会所入口成为视觉焦点;“华之纹”则融入地面铺装、吊顶嵌板与景观浮雕,让品牌文化与海派肌理自然交织。

“华之纹”演变过程
这种文脉表达,并非对海派风格的简单复刻,而是对武汉“摩登之都”气质的深度呼应。正如百年前海派建筑师在石库门中融合中西智慧,如今的设计也在滨江语境下,让海派的精致与江城的豪迈共生——弧形立面呼应长江的蜿蜒曲线,金属构件的光泽映射江面的波光,最终形成“既有海派雅致,又具滨江气魄”的空间气质,让文化成为可感知的生活日常。



细节实景图
四、场景再造:全龄生活的温暖容器
社区的本质,是人的集合与生活的发生。将“全龄友好”作为设计核心,在空间中植入多元生活场景,让社区成为承载烟火人情的容器。抬升层4600㎡的架空空间被设计为泛会所,划分为休闲活动空间、健身区、养老棋牌区与儿童活动区,每个区域都兼顾功能与情感:休闲活动空间以轻奢软装搭配绿植,成为社交的小天地;健身区配置专业器械,落地窗外就是滨江绿化,运动时可远眺江景;养老棋牌区采用圆角桌椅与防滑地面,旁边设置饮水台与休憩沙发,细节处体现适老关怀;儿童活动区以“幸福的四叶草”为主题,铺着软质地垫,搭着绘本架与攀爬网,家长站在旁边就能看护。


庭院实景图
这些场景通过连廊串联成整体。六大归家礼序空间——小区出入口、城市会客厅、活动场地、连廊、架空层、入户大堂,形成处处有景的动线,老人推着婴儿车能轻松从活动场地走到架空层,年轻人下班可顺路在健身区锻炼,孩子放学后能在儿童区玩耍等待家长。这种“动线即生活线”的设计,让不同年龄、不同需求的居民都能在社区中找到自己的位置,重建现代都市中逐渐淡化的邻里联结。

连廊效果图

室内看庭院实景图
从底盘革新到文脉共生,武汉锦绣年华社区设计的实践,诠释了滨江复合型社区的全新可能:它以“超级底盘”与“双区联动”破解空间局限,用“立体绿化”呼应地域生态,借“海派转译”激活文化记忆,最终以“全龄场景”承载生活温度。这种设计不仅是对居住功能的优化,更是对城市滨江肌理的尊重与延续——它让社区成为长江岸线的有机组成部分,既向武汉的城市文脉致敬,又为当代滨江居住提供了“功能、生态、人文”三者平衡的答案。

沿街效果图
技术图纸

地下一层平面图

一层平面图

屋顶平面图

东地块-北立面图

东地块-东立面图

东地块-南立面图

东地块-西展开立面图

西地块-北立面图

西地块-东展开立面图

西地块-南立面图

西地块-西立面图
工程档案
项目名称丨武汉大华·锦绣年华
项目位置丨武汉市青山区建设二路与抚顺街交汇处
项目类型丨会所
业主单位丨大华集团武汉公司
业主团队丨邓亚枫、翟国星、徐可乐、于春雨
建筑设计丨上海日清建筑设计有限公司
设计总负责丨 吴笛
建筑团队丨 陈炯鹏、马大伟、马锐、雷磊、付忠国、王春浩、李从、齐金辉、薛嵋月
建筑施工图设计丨武汉正华建筑设计有限公司
景观设计丨凯盛上景(北京)景观规划设计有限公司
室内设计丨深圳市郑中设计股份有限公司
幕墙设计丨弗思特建筑科技有限公司
建筑面积丨2020㎡
设计时间丨2024.11
竣工时间丨2025.08
专业摄影丨远洋





