
引言
翻开历史原文,场所作为一种信息被译写 。
后来人读了新的故事,新的故事又会有后来人阅读。
故事把原文传递下去,原文把故事留了下来 。
-


◎身处于古城之中的狮子口建筑遗址及扩建展示馆
本案从地域特质出发,以扩建展示馆为纽带,在空间、形式、材料及功能四个方面进行探索,通过强调精神与物质在时空上的连续性,使原本单一,无特征的“场址”变成可引起人们共鸣的“场所”,融合历史与当下,实现场所复兴。
环境:时代旧痕
苏州古城仓街东侧,与苏州历史文化名街平江路仅相隔一个街区,这里是曾经有着“民国三大监狱”之称的苏州狮子口监狱。在风云激荡的百年间,狮子口监狱和很多历史人物有关。1937年国民党起诉“七君子”,当时宋庆龄、何香凝、胡愈之发起“救国入狱”运动。此外,陈公博、褚民谊、缪斌等在这里被执行枪决,汪精卫之妻陈璧君也曾关押于此。


◎场地区位
如今,基地内仅保留了当时的一幢民国办公楼以及一段围墙遗址。随着时间的侵蚀,后刷的涂料逐渐脱落,露出民国时期青砖墙面。从这栋普通的二层双坡建筑上,清晰可见当时西方文化对中国建筑的影响。基地东侧与北侧旧时的聚落只剩下断壁残垣,未来这里即将被新式的江南街巷取而代之。


◎修缮前后的狮子口监狱办公楼对比
初衷:记忆延续
建筑物存在的目的是将敷地变成场所,
换言之,揭露隐伏在既有环境中的意义。
场所是不同环境下空间意义的呈现,而这份意义的产生要依附于人对于空间场所的集体记忆,对于苏州古城居民来说,街巷、院落所形成的开放包络空间是古城居民的共有记忆,是对于家乡场所的空间印象。

◎场地记忆要素拼贴
基地范围之内有多处当地居民几代人共同的记忆,办公楼、围墙、昭示着场地原有的场所氛围,站在历史与公众的视角上,设计意图有机的存留它们并使后代从中受益,并且在不破坏原有建筑历史价值的基础上激发场地的潜能,传承场所精神的同时赋予场所新的意义。

◎展示馆入口处完整立面
空间:新旧对话
基地内与旧房相伴的有一株百年古柏,它是过去一个多世纪历史的见证者。如果将周遭复杂的“时间痕迹”比作场景化的时刻,古柏则是巨大的日晷晷针,随着历史的推移,向场所内投射时代的影子。

◎百年古柏的时间历程
以此“空间日晷”为灵感,建筑师形成了最初总体布局的构思:以古柏为轴,形成一个连续的空间,对外与周遭的环境充分对话,对内形成向心型的内院,并向他们南侧的城市广场及地铁出入口打开,形成一个“窗口”,促使当代城市生活与历史建筑进行对话。

◎围院空间生成

◎不同方案的可能性


扩建展示馆作为时空上的一枚纽带将办公楼、古柏、与外部空间串联起来,其是办公楼在时间维度的延展与生长,在扩建展示馆体量中,随处可见原有的建筑特征,但又各自保留恰当的独立性,新与旧的视觉冲击感被淡化,进而生发出新的整体。新老建筑在同一时空上叠加,并置,相互为邻。



◎扩建展示馆以古柏为轴与办公楼产生时空上的对话
形式:差异同句
新建筑的屋顶以办公楼脊线的方向开始生长,依附于原有的双坡屋顶,进行如书画笔触般的勾勒,经过分裂旋转合并之后到达入口,形体亦随之变化,通过渐消面将脊线消解,最终民国双坡屋面转变为苏式的单坡曲面。而新建筑也成为民国建筑向传统苏式建筑过渡的桥梁。



◎扩建建筑屋顶脱胎于民国办公楼双坡屋顶,并结束于苏式弧线屋顶


◎左图:参数化控制下的屋顶变化关系;右图:整体屋顶关键角点相互关联
在对于屋顶的操作之中,为了探求不同屋顶形态对于空间形式的影响,我们通过参数化控制将屋脊线控制为影响屋顶形态的唯一输入要素,通过调整脊线的旋转角度,可以随时观察屋顶形态的变化及其与办公楼屋顶之间的关系,在这个过程中,可以直观的发现概念思路与落地应用之间的矛盾,并找寻到两者之间最佳的契合点。


◎屋顶体量变化导致的街角人视点体量转折呈现
项目占据苏州仁恒仓街商业广场一角,变化的转角设计,在视线转换的过程中让人们能够感受到空间扭转的力量,提供特别的街角呈现。屋顶上形态的拓扑变换将民国遗址双坡屋顶转译到弧线屋顶,融合了不同时代建筑风格的同时又提供了特别的第五立面。


◎沿街立面细部
从屋顶到建筑墙面,设计一直在尝试抽象城市片段的典型印象,以不同的材质与形体传达具有遗传性的形式与空间。新建筑立面抽取办公楼立面形态原型,通过类型学的归纳并转译至扩建建筑之上,形成同一句式下的不同时代语汇的表达。

◎原型的抽取与转化
材料:异质同构
本案在修缮旧建筑时,沿用了青砖,修旧如旧;扩建部分立面材质采用陶砖,沿用办公楼立面青砖肌理的同时创造一种新的触觉感知,在唤醒人们潜在记忆的同时,展现出新的场所印象。砖瓦肌理从屋顶一直倾泻至地面,空间素雅宁静。

◎材质质感与肌理
入口处的圆弧形玻璃砖体量将内部办公楼与外部广场的空间关系朦胧化。对内折射故居投影,追忆历史;对外反射现代生活,展望未来。从青砖到陶砖,再到玻璃砖,新扩建建筑实现了旧建筑肌理的的延续与质感上的迭代感。

◎连接当代与历史的弧形玻璃砖墙



◎材质肌理的延续与质感的迭代
结构:皮骨贴合
概念的诠释有赖于作为建筑骨的“结构”与作为皮的“幕墙”的完美贴合,具体操作中,为了应对扩建建筑变化的屋顶形态,设计采用混合结构。

◎结构三维图解
扩建展示馆主体采用钢筋混凝土结构,入口部分采用钢桁架结构,通过钢桁架充分拟合屋面造型来满足最大跨度达21m同时完成面高度仅700mm的屋面系统。

◎入口屋面钢板划分逻辑

◎入口钢结构施工
倾斜的玻璃砖墙,暗示了斜向内院存在的同时还隐含了对于新旧时空的转换。为了在标准化做法下实现设计构思,我们首先优化了弧形曲面由三维曲面转变为单曲面,之后设计在7.8米的高度中,每12排玻璃砖设一道钢板,与其背后的桁架竖挺一同控制出玻璃砖墙的退台趋势,同时为每一排玻璃砖的堆砌提供支承。

◎考虑到具体的节点做法与实际工程难度的控制,在不破坏原概念的情况下简化几何关系

◎弧形玻璃砖幕墙优化动图
钢板与钢板之间拉结钢筋,将交错拼接的玻璃砖串在一起。为了实现免胶做法,在玻璃砖墙内侧我们设置了一道弧形玻璃幕墙,保证了建筑的气密性和隔热性能的同时实现了立面的纯净整洁。
得益于最初对于曲面形态的优化,最终建筑结构与幕墙杆件完美融合在一起,实现了“皮”、“骨”之间的完美贴合。


◎弧形玻璃砖幕墙曲玻璃砖对于曲面适应性

◎弧形玻璃砖幕墙现场施工


◎左图:弧形玻璃砖幕墙与室内弧形玻璃幕墙
◎右图:倾斜玻璃砖幕墙形成的入口空间效果
功能:类型置换
历史的痕迹留在博物馆是静态的,留在生活中则是动态的。与百姓生活息息相关的活动不断的在这里发生,过去是这样,以后也是这样。延续遗址生命的方式,是置入新的功能。


◎展示馆室内实景
向民众开放之后的新场所办公楼旧址将改为仓街历史文化展览馆,扩建部分则展示新规划的成果,在仁恒仓街商业功能投入使用后,则转变为特色餐厅,与旧址展馆一起成为引人注目的打卡地。原有场所氛围则在新的功能内容下得到新的延续和传承。
技术图纸

◎总平面图

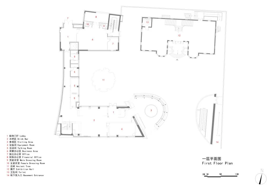
◎首层平面图

◎二层平面图

◎南立面图

◎北立面图

◎东立面图

◎西立面图

◎剖面图

◎剖面图

◎节点图
工程档案
项目名称丨苏州仁恒仓街商业展示馆
项目位置丨苏州市姑苏区干将路北侧 仓街东侧
业主单位丨苏州星岛仁恒置业有限公司
设计单位丨上海日清建筑设计有限公司
项目总负责丨宋照青 岑岭
项目经理丨初子圆
技术主管丨郭丹
设计团队丨赵晓雪 刘泽华 陈丹丹 吴旻琦 朱晓磊 王玉戈 于昕 高亚群
图表设计丨陈诗韵 乔灵 温海宽
实景合成丨徐睿鹏工作室
施工图设计丨苏州城发建筑设计院有限公司
景观方案设计丨诗加达景观设计公司
景观施工图设计丨苏州致朗建筑景观设计有限公司
幕墙单位丨上海熙玛工程顾问有限公司
室内设计丨深圳市水平线室内设计有限公司
室内施工图设计丨深圳市水平线室内设计有限公司
室内施工单位丨南京仁生装饰工程有限公司
土建施工丨中亿丰建设集团股份有限公司
幕墙施工丨上海科胜幕墙有限公司
景观施工丨浙江鑫胜园林绿化工程有限公司
建筑面积丨2866.71m²
建成时间丨2020年7月
建筑摄影丨CreatAR Images





