义乌黄山村八面厅
文 / 赵晶鑫

图片来源:《黄山八面厅,建筑与雕刻艺术》
摄影:刘小放
来自建筑师的分享,寻找最真实的生活元素
匠人本质,文人内核
本期主题
中国古建筑——义乌黄山村八面厅
正文
上一次去义乌黄山村八面厅已经有四五年了,这个地方相对比较偏僻,也不是什么景点,人很少,这也是他幸免于城市化过程的原因吧,一直想写一些文字描述当时的感受,第一印象就是觉得他就像是中国版的阿尔罕布拉宫,后来时间拖得太久,这种感受已经从视觉的震撼慢慢沉淀成为一种思考过程。

◎ 南边廊明间檐下雕刻
这二十多年来,中国地产的审美从地中海的异域风情,法国式的贵族风范,到ArtDeco式的大都会经典气质,终于回归到近年来流行的东方“院子热”,其本质而言,并不是文化的回归和重构,而是“拉斯维加斯式“的对于“风格”的麦当劳快餐式的“消费”,可怜的是真正传统意义上的院子,具有很高艺术价值的古建筑,已经被破坏殆尽,目前看似蓬勃发展的商品住宅行业,不过是对货币超量发行的回应,就像英镑的黄金本位,美元的石油本位一样,目前我们只能用房子来挂钩货币,比如近期设计行业对于工作高强度的吐槽,其实也是过大的金融杠杆带来的市场回馈。本文无意于时下风行,而是想聊聊这座令人叹为观止的老房子,传统文化下古典商人的精神世界和情趣追求,在经历了重重时代变革下,少有的沧海遗珠,浙江义乌黄山村八面厅。

◎ 门厅明间檐柱牛腿拱全景

◎ 边廊枋下雀替/花神

◎ 左:门厅明间檐柱牛腿拱全景

◎ 廊边天花 / 金鱼鲤鱼组图较多,寓意金玉满堂
切入主题之前,想先谈谈文化品位的形成,和背后的政治经济背景之间的关系,换句话说就是种种超出基本功能之外的闲情风雅来自何处。明代有两本与人文建筑相关的著作,一本是计成的《园冶》,一本是文震亨的《长物志》,前者是对建筑与花园,居住空间与园林空间诗情画意结合的系统性理论性的归纳整理,后者偏向于室内,对于花鸟鱼虫,金石玩物的总结,说白了都是烧钱指南,就像用徕卡相机拍照一样,体验的过程远大于基本功能和结果,要的就是那种精密机械运转的机械快门声音,和几乎一成不变的外观设计和质感,这种执念,俗称工匠精神。这种对风雅的消费是何以产生的,江南地区经济一度繁荣从何而来,其实是当时的人未必清楚的。

◎ 《园冶》计成 (左) ◎ 《长物志》文震亨(右)
从公元1492年哥伦布发现美洲之后,世界政治经济体系进行了系统性升级,根据《历史的地理枢纽》一书中描述的逻辑,世界格局原本是由以亚欧大陆及北非为主体的“世界岛“,其枢纽在亚欧之间,而之后则彻底转变为以海洋为枢纽的整个现代世界体系,中国虽然还是保持着农业国家的思维方式,但仍然不可避免的卷入这个系统当中,南美洲波多西的银矿里的一大部分白银从宁波流入中国换取货物,货币储备极大的刺激了江南地区的手工业和商业的发展,也同时激发了温饱之外的雅趣,同样的也是因为,明后期白银的大量流出造成的通货紧缩,导致了明末的经济崩溃和政权崩塌,所以和万历,崇祯的专业素质其实没有关系,史学家黄仁宇将中国盛极而衰的时间定义为1587年(万历十五年),而计成生于1582年(万历十年),文征明之孙文震亨生于1585年(万历十三年),实际上都是整个国运高峰的时代,而明亡之后,文震亨是以绝粒死的形式谢幕,可敬的是他对儒家道德观类似于宗教式的恪守,可惜的是当时的人们不懂经济学概念,亚当.斯密还要两百年后才出生,总体来说是当时市场经济的繁荣,催生了中国人文艺术的高峰,并被推崇至今。

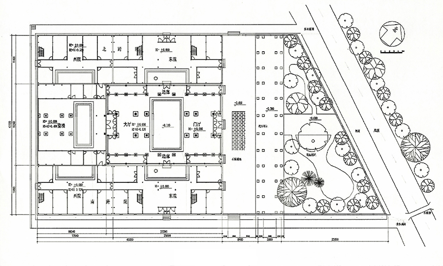
◎ 八面厅区位环境示意图

◎ 八面厅平面图
回到主题,黄山八面厅位于浙江义乌市上溪镇黄山村,距义乌城区25公里前临凰溪、后靠纱帽尖山的谷地,坐西南朝东北,由陈子寀祖孙三代于乾隆嘉庆时期,历经17年建成挂匾,取名“振声堂”,意为“振兴家声”,轴线及两侧各有两层厅堂,俗称“八面厅”。前后经历了太平天国破坏,抗日战争,文革运动,于2000年前后,正式列为全国重点保护单位,进行全面的维修和保护。保留下来的是整个宅邸的核心区域。

◎ 八面厅剖面图
根据《义乌石门陈氏宗谱》记载,陈氏祖籍福州,宋代迁入义乌,乾隆年间陈子寀已是第24代,36岁铲玉米地意外收获数一窖白银数百两,这个说法应该无从考证,看起来多半是为了洗白原始积累的合法性带有童话色彩的故事,以此巨资为本,经营火腿生意,由于经营有道,规模不断扩大,不到20年的时间,就成为义乌西乡有名的富户。乾隆后期,陈子寀已置田近700石,先后建造厅堂已有8座,计207间,平房100余间,财富积累越来越多,由于祖茔(ying)风水限制置田不能超过700石,所以决定建造更大规模的厅堂——振声堂。

◎ 北边廊明间檐柱牛腿 / 刘海戏金蟾
这里涉及到两个问题,商人的财富为何最终通过土地占有规模来进行评价,这个规模又需要有一个无形的尺度来约束。这实际上还是自然经济税收政策的选择,相比商业税和人丁税,土地税收一直最行之有效征收低成本的税收方式,商人的财富和交易过程容易藏匿,在中国土地广阔,征收成本巨大,所以政府通过对商人阶层的政策打压和文化上的鄙视,如“商人重利轻别离,前月浮梁买茶去”之类。倒逼商人阶层转型地主阶层和文人官员阶层,结果就是越是经济发达地区,“耕读传家”的传统越盛行。而最终的结果就是中国在自然科学上的停滞,产权意识和金融行业的空白,毫无科技革命的动机和可能性。当下的情形基本类似,在金融领域和产权保护不健全的情况下,扎堆买房也只是一种无奈的选择。另外为什么土地不能超过700石,也不是什么风水概念,其实也是富商对于安全感的评价下的一种自我保护的智慧吧。

◎ 左:堂楼北厢房窗隔心之二渭水河
◎ 右:堂楼北厢房窗隔心 之四郑和下西洋
而这所厅堂只是江南富户的一个缩影,包含的是古代商人家族几代人的财富积累和精神追求的价值,这样的建筑和现象应该是普遍存在的。而我们有理由相信相比当下中国乡村的凋敝和破败,古代中国乡村的景象要精致和有生机的多,并不是我们目前人造景点的乏味恶俗的状态,在我们着力打造美好乡村的时候,有必要先了解曾经的乡村有多美好。

◎ 上:大厅雀替之夏赏绿荷池 / 春游芳草地
◎ 下:大厅雀替之火烧于洪 / 风雪访普
八面厅的价值不在格局宏大而在令人窒息的精美细节,体量面积上与北方皇家宫殿和附近的东阳卢宅没法相比,但内部的雕刻尤其是木雕代表了中国工匠的最高水平,通常情况下,雕梁画栋,八面玲珑,这些词汇往往是汉语的夸张和形容,但就这座房子而言,却是完全真实的表述。木雕的手法结合了传统美术审美的原理和当地工匠们手工艺行业的长期积累传承,内容则是传统故事和朴素的愿景,也包含对后代的教育和文化传承,简单的说就是儒家文化思想的雕刻版本,但其精美和震撼如图所见,美不胜收。

◎ 左:堂楼北厢房槅扇门隔心之戏曲故事
◎ 右:堂楼北厢房槅扇门隔心之福萃一堂

◎ 左:堂楼南厢房槅扇门隔心之长生殿.重圆
◎ 右:堂楼南厢房槅扇门隔心之戏曲故事

说到这种密集恐惧症式的美感,确实很容易让人想起阿尔罕布拉宫,这两个分别位于亚欧大陆两端的建筑,其实想想也是殊途同归的,都是世俗世界步入人生巅峰之后,通过建筑空间和繁复装饰来的填充精神世界,不同的是中国人的木构建筑和工匠的镂空木雕,会伴随着时间呼吸风化消失,而摩尔人,用石头盖房子,砂浆倒膜制作图案,希望信仰随建筑永恒。
文明是副产品,建筑也是副产品而已。





