
茂铜雀台·龙胤
Shimao Long Yin, Suzhou
中国,苏州
Suzhou, China
十月,偶遇苏州
October,in Suzhou

有人说:哪八个字可以形容苏州?
“巷道窄窄”,“院落矮矮”
是的,这并不是赞美之词,
却诠释到极致。
因为这才是苏州,自始至终。
“君到姑苏见,人家尽枕河;
古宫闲地少,水巷小桥多。”
唐代诗人杜荀鹤给我们描绘的是如此江南。
而“人道我居城市里,我疑身在万山中。”又是另一番令人神往的江南水乡之梦。
这便是苏州、
繁华却不嚣张,沉静却不沉默。
这便是苏州,
我遇见的苏州,十月的苏州。
“不出城郭,而享山林之怡”

本案位于苏州工业园区金鸡湖,独墅湖双湖板块.项目所在的位置远可借独墅湖,金鸡湖之景,近可借园中曲水流觞之境,自成一派。

在规划设计上,本案与宋代平江古城一脉相承。充分利用地理条件,规划布局与景观带密切结合,组团形制,既包容开放的街道,又保留传统院落的含蓄内敛。“水陆平行,河街相邻”式的棋盘式格局。
言有尽,而意无穷。
—— 回归到以人为本的城市空间理念

城市的发展是一个不断延续的历史过程,一个城市的空间及建筑都深刻的记录和承载了不同时期的历史和文化;苏州则是一个充满着“礼制”与“诗意”之人文精神而并存的城市。展示区在“意趣活泼、野致横生”的主题下,将实体空间与景观结合在一起,采用非对称的空间形式,塑造出传统的苏州园林式的空间形式。做到移步移景,秩序与雅致共存。

.GIF动图

下沉庭院为满足会所的采光的功能需求,立面采用玻璃幕墙,通过玻璃肋形成传统园的柱列的秩序空间,中央的水池配以极简的枯山水等景观,意图营造出传统江南士大夫气质的空间质感。从下沉庭院的视角看去,形成多个层次,不同材质质感的空间体验,在统一的语言下,形成洗练的建筑氛围。


品一壶茶,游园自赏。
—— 移步移景的院落空间
苏州传统园林的空间形态在本质上来说是一种,内向型的空间建构,“园”取法“画意”,而“画”之空间布局原则即中国式三点透视(高远、平远、深远)。也就决定了“园”之分散角点的空间结构提供了一种特殊的自由,人以步行的方式来阅读建筑空间。因此设计师精心设计一条行进路线,通过连续、变化地展示建筑物的各个主体空间,使被控制下的展示空间创造令人激动的效果,亦创造了一种随观看角度的转移而趣味生动的流线。通过行成一个严格对称和秩序的院落空间,三进院中的每一个院落都通过建筑实体与景观围合具有仪式感的空间,移步移景,塑造出传统意义上“壶中天地”的空间。
一进院·恍如隔世

拓印了苏州印象的半天仪门,缓缓拉开,朴素简约的门第向你诉说前世姑苏的诗意,轻扣一对双龙门环,由此步入桃园大宅。

二进院·曲水流觞

进入二进院,漫步在静谧深幽的连廊,清风摇曳着竹林,沙沙作响。品一壶茶,听,自然在说话。


三进院·四水归堂

沿着水流,顺势进入三进院,映入眼帘的是一幅奇妙的山水画,伴着灯光闪烁着古时恬静的夜景。回眸处,又见跌水处的一线天,直指五光十色的琉璃墙,仿佛时光在诉说古今往事纷繁。


匠心营造,文化传承。
—— 含蓄深邃的虚实空间


建筑山墙立面构图结合苏州传统民居山墙面较实的特点,大面积留白,与南立面精致细节形成强烈对比。灵动的人字顶采用金属包边,与白墙达到紧致的融合。精致且不繁复,极简却十分考究。

中国人在艺术处理上重视虚实空间的组合与变化,采取含蓄隐晦的方法,追求意境之深邃和优雅。设计上我们摒弃了漫长岁月在苏式民居上的种种痕迹,回溯到宋代的简约美学中,墙体是简单的几何线条,百叶窗,直棂门窗上所有繁复的窗花和窗格都简约化。呈现出流动的线条,游刃于虚实之间,空间有限而感受无垠。


山墙面中间部分取百叶的做法,虚实相辅相成,若隐若现,增加景深,使建筑环境更加具有层次感,以有限的空间创造深远的意境。屋面色彩选取具有苏州特色的青瓦灰色,深浅灰色间隔,与传统建筑风貌相和谐;材质选用现代的铝镁锰金属屋面,实现现代新工艺对传统建筑特色的表达。

我们注重保护和传承已有的城市空间体系。通过传统元素意象与现代手法的材质处理,立面既保留苏州传统建筑感知,也发挥了现代手法对传统材料的创新。


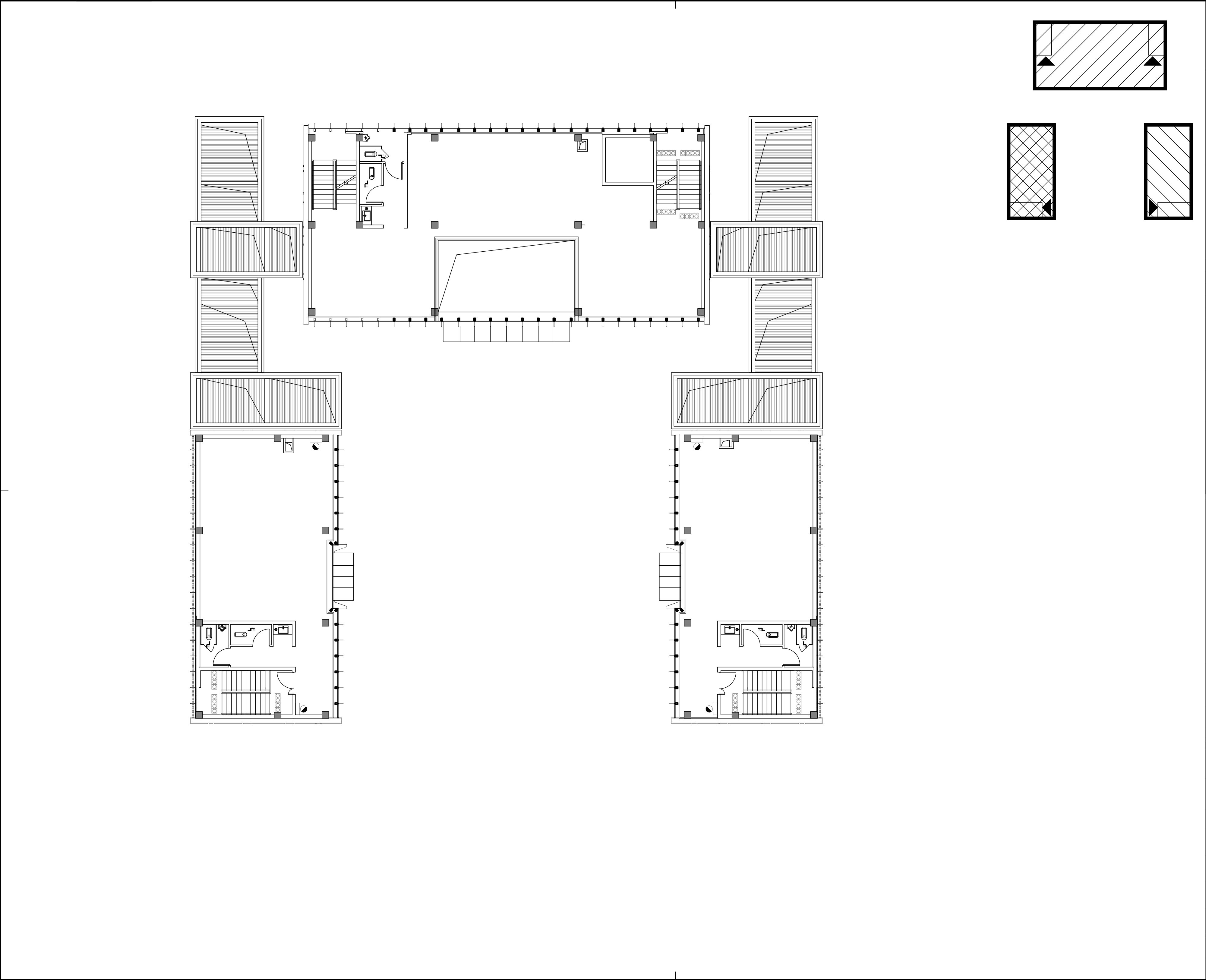
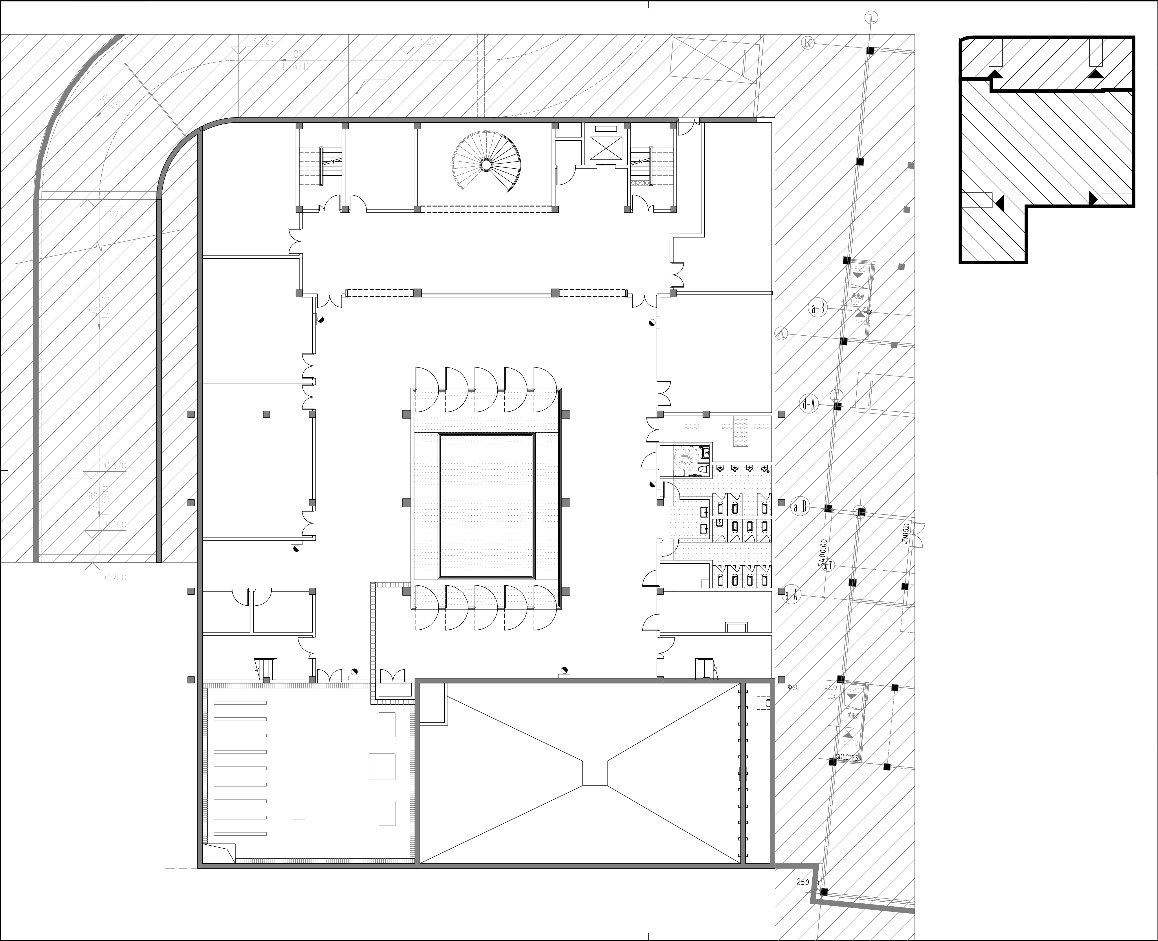
技术图纸
Technical Drawing

二层平面图

地下一层平面图






