
——引言
“江南园林甲天下,苏州园林甲江南”,苏州以其园林而闻名于世界。本案在整体格局上以“园”为整个样板展示区的核心,所有的建筑围绕中心园林布局。建筑主体包含一栋4000㎡展示中心、一栋叠拼样板房及一栋合院样板房。
太湖之畔,山水之间
——简介 INTRODUCTION
项目基地处于太湖东山最核心的位置,位于环太湖大道与山水路两条最城市干道交汇位置。基地西北侧为太湖东山旅游区,基地东侧4公里为苏州园博园。


◎ 项目模型
“江南园林甲天下,苏州园林甲江南”,苏州以其园林而闻名于世界。本案在整体格局上以“园”为整个样板展示区的核心,所有的建筑围绕中心园林布局。建筑主体包含一栋4000㎡展示中心、一栋叠拼样板房及一栋合院样板房。


◎ 实景鸟瞰图
苏式情怀,园林之美
——空间与流线 SPACE&FLOW LINE
如果说传统的售楼过程是一种洗脑式的营销理念灌输,我们的售楼处更希望实现“读者”的自我参悟。从一路蔓延的竹林,到一墙朱砂的立面。泊车寻找入口之余,一次不同的旅程便已开始。“缘溪行,忘路之远近”。虽无桃花源记中“芳草鲜美,落英缤纷”那般浪漫诗意,但“复前行”,通过一处微缩的“一池三山”景观主入口后,遍可真的以小见大,“豁然开朗了”。

◎ 主入口

◎ 停车

◎ 停车入口
在参观体验过程中,无论售楼处室内外,一个个或开放、或封闭、或人工、或自然的精巧庭院会共同铺开一卷“山水园林”。让参观者体会到造物者浑然天成的鬼斧神工,体会到建筑师匠心营造的舒畅妙境,体会到建筑、山水之间,一种观赏与被关赏,侵入与被侵入的乐趣。


◎ 廊桥

◎ 中心庭院


◎ 廊道
紫竹 云山
——手法与材料 TECHNIQUE&MATERIAL
古人云“宁可食无肉,不可居无竹”。整个示范区设计理念中,都贯穿了“竹”的要素。中心庭院中“叠石流泉,茂林修竹”的氛围营造不说,连售楼处不同角度的建筑立面只要细细品味,都会处处有“竹”。
玻璃幕墙外挂的大小竖向竹百叶,类似竹节生长的外墙石材错位竖拼,甚至那阳光透过精细打造的穿孔紫金色金属板,落在暖白的墙面,与入口处形成的点点光斑,都让人无不感受到竹林的静谧深幽。而若远观整个示范区,若烟云掩映,竹雨显晦,参观者期往的诗意栖居与建筑师胸中的云山丘壑,必将在此时归于一处。



◎ 入口金属网

◎ 入口水景
小面积 大体验
——户型设计 HOUSE TYPE DESIGN
如今的房地产市场,“地王频出,价格为王”悄然成风;为了盈利,降低舒适度换货值最大化的做法也早已屡见不鲜。而我们希望以大多数消费者承受范围内的价格做到住宅产品舒适度最大化。紫竹云山的产品定位是小面积、高体验的别墅区。我们要做的就是太湖湖畔,苏式情怀,低密度兼顾经济性的别墅区产品。
合院产品—L形布局,展开面更多
传统的联排户型为了能把量做到最大,会把开间及展开面积做到最小,反映在产品中就是明显的短开间、长进深的“长蛇形设计”。这种狭长型的布局会导致户型的通风采光极差。为了避免这一问题,我们采用了一种“L形”的合院布局方式,从而让产品的展开面更多。


◎ 合院北立面

◎ 合院鸟瞰
叠拼产品—小房子、大天地
一说到天地,人自然而然地会联想起气势恢弘的大场面,金碧辉煌的大别墅,其实不然。云舒系列的叠拼户型的面积不算很大,100㎡左右,但足以让每个住户拥有属于自己的天和地。闲暇时光,来到家里的露台上,一抬头便是蔚蓝的天空又或是满天繁星,能承载你所有的想象力。

◎ 叠拼户型组团效果
◎ 叠拼立面

◎ 叠拼下叠入口

◎ 叠拼南立面

◎ 庭院入口
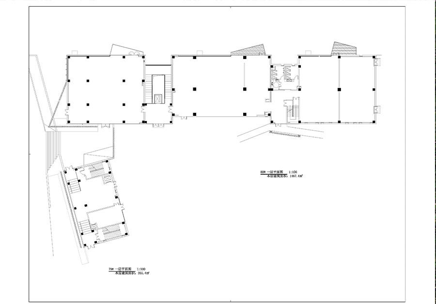
社区中心平面功能

◎ 首层平面图

◎ 立面图


◎ 室内实景





