·
▲Prodor 柏凡·郎朗音乐酒店
Prodor Baifan Langlang Music Hotel
建筑是凝固的音乐
音乐是流动的建筑
—— 谢林
PREFACE
序 曲
黄浦江从上海城市中心顺流而上,在杨浦区的“东外滩” 拥有上海各区中最长的江岸线,随着城市的发展上海市产业结构的调整,滨江区原有的功能迁移,地区功能逐渐消失。依托得天独厚的“一江一河”滨水空间为建设载体,贯通黄浦滨江两岸 45 km 的步行空间,打造世界级滨水休闲区,将滨江空间与承载城市生活的街道空间有机连接。在这样的环境下,找到新产业发展动力,赋予项目一定的城市意义,同时营造充满活力的空间,是建筑师的使命.

▲滨江二段平面图

▲区位图
Prodor 柏凡·郎朗音乐艺术世界项目恰好位于上海母亲河— —黄浦江的两个轮渡站之间,属于杨浦滨江南段二期。从总图可以清晰看出四个板块,入口建筑与景观改造,大堂雨棚及周边景观的巧妙结合,沿江后场与城市空间的连结,屋顶酒吧与直面黄浦江地理区位的呼应。

▲滨江公共空间

▲杨浦滨江南段二期鸟瞰
INSPIRATION
灵 感 // 泛 博 物 馆
面向城市整体形态更新及景观外立面改造双重挑战,设计师提出“泛博物馆化”的理念,“泛博物馆”是指室外博物馆,整个场地像博物馆一样以环形流线的方式陈列着我们的空间设计和草品上预留着的艺术品空间,同时丝带般曲线的场地步道赋予了景观生命力,表达了从建筑向周边、从陆地到河流的曲线运动趋势。建筑场地具备清晰的参观和娱乐动线,巧妙连接城市空间和酒店内部空间。

▲城市更新与保护原真性的产物——郎朗音乐艺术世界项目
“爱丽丝艺术之家”(Alice' House) 是 Prodor 柏凡·郎朗音乐艺术世界户外空间改造的主题,“爱丽丝艺术之家”的灵感来源于贝多芬 Beethoven创作的世界钢琴名曲曲“献给爱丽丝”(For Alice)。整个系列分为三大部分,“爱丽丝之眼”、“爱丽丝艺术花园”、“爱丽丝天空俱乐部”。
“爱丽丝之眼”(The Eyes of Alice)是 Prodor 柏凡·郎朗音乐艺术世界的入口,主题为“璀璨的眼睛”。设计者制造了视觉高潮,造型取意于爱丽丝的裙摆,顶部造型形似一只眼睛,契合钢琴曲线造型趋势, 远观宛如钢琴撑开的琴架。

▲“爱丽丝之眼”模型动图

▲“爱丽丝之眼”
“爱丽丝艺术花园”(The Alice' Art Garden ') 是 Prodor 柏凡·郎朗音乐艺术世界户外景观改造的主题。“爱丽丝艺术花园”的主题为“ 舞动的旋律”。设计者希望艺术花园的场地设计如同乐曲一般,伴随着节奏的抑扬顿挫,隔绝外界的喧闹,完成与内心的安静对白。


▲“爱丽丝艺术花园”
“爱丽丝天空俱乐部”( The Alice' s art sky club),设计者选取音符和键盘的意向,打造了一个集观演、展廊和餐厅于 一体的视野极佳的“天空俱乐部”。由于地处黄浦江畔,一线江景尽收眼底,西南角为东方明珠塔,滨江对岸是筒仓美术馆, 东北角为杨浦大桥,视野极度开阔。



▲“爱丽丝天空俱乐部”
THE RUNNING SCENERY
筑 // 艺 术 节 点
在蜿蜒的城市之河两岸,共有多达 30 处之多的城市艺术公共空间,其中不乏“龙美术馆”“筒仓美术馆”“艺仓美术馆”“油罐博物馆”这样的知名艺术世界, 城市之河更像是艺术之河,是名副其实的滨江艺术生态链。

▲筒仓美术馆

▲艺仓美术馆

▲龙美术馆
郎朗音乐艺术世界以 艺术激活串联室内外空间的设计逻辑符合整体黄浦江滨江延续艺术生态圈氛围。它不局限于做景观设计,还为艺术品展陈提供场地与氛围,放大到城市艺术生态链来看,郎朗音乐艺术世界即为滨江艺术生态链的重要艺术节点。

▲郎朗音乐艺术世界

▲入口空间
THE CLAM WATERS
览 // 空 间 美 学
郎朗音乐艺术世界的设计回应城市公共空间,同时又具有空间美学。入口处原为空旷的前场,赋予了入口处标志性的门头, 增设水池,丝带形门头与叠水的设计尊重了城市界面和人体尺度,与行人进行了很好的互动,呼应黄浦江的同时也连接了城市界面。

▲入口门头模型动图

▲入口门头
大门开阔式的布局既为地库口的分流,又为使用者进入花园的视觉指引,游客的视线得到了足够的延展,景墙同时往里延伸, 体现了城市公共的渗透关系。

▲郎朗音乐艺术世界
丝带般的流线把后场分为不同的活动区域,后场动线神似船在水中。后场沿滨江部分设置了城市公共的座椅,目的是在私密与公共空间之间 有一个友好的过渡,建立公共与半公共的关系,滨江外散步的 人能在这休憩欣赏,酒店内的人也能与江景进行良好的互动。

随蜿蜒的步道,漫向花园深处。移步异景的美学意境,将曲线消隐于美学之中。

▲滨江后场

▲滨江后场
DRAW LIGHTS INTO ROOM
光 // 感 知 灵 动
入夜,左右延展相互流通的光线,高低错落的音符,与黄浦江景形成了互相渗透的格局,赋予空间以生命感和自然的灵性。

▲郎朗音乐世界夜景
建筑强调流通感的设计,模糊空间的界限。在室内环境与音乐之间建立对话,于室内营造另一层风景。

音乐中心大堂明朗开阔,犹如一架支起的三角钢琴,穹顶、墙面、立柱呈现立体架构,大面积呈现金属质感。落地窗引入自然光线,打造出一个通透、壮阔的艺术殿堂。

▲大堂


▲音乐餐厅
内部空间巧妙引用钢琴结构,琴键与外在弧线的融合接纳,演绎建筑与音乐的绝美唱和,探索“泛博物馆”建筑复合形态。
HEAR THE SING
听 // 归 还 时 间
在本次项目里置入了我们为项目量身定制的两件艺术装置——“时空之眼”与“叁”。“时空之眼”放置在前场酒店入口雨棚处,以一个直线三棱锥的形式与入口雨棚的曲线造型形成了对比呼应,暗示了音乐的流动和时间的凝固与永恒。

▲"时"置于前场
“叁”放置于沿黄浦江边的后场“泛博物馆”上。“叁”的外形形似三只耳朵,希望在这个特殊的城市音乐空间中,通过三只耳朵,一只凝听音乐时间的钢琴声,一只凝听黄浦江的波涛与游船的汽笛声,还有一只凝听远处陆家嘴城市的独特之声,同时也暗示着过去、现在与未来三种不同的时空维度在此处相交。

▲"叁"

▲"叁"置于后场
THE END
尾 声

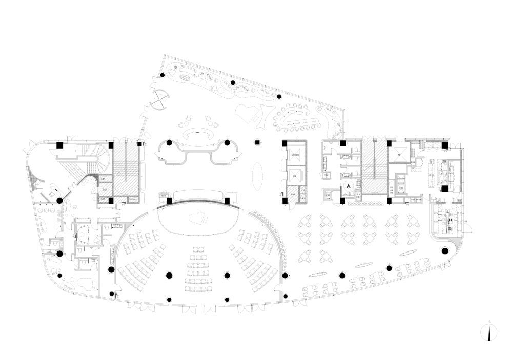
▲首层平面图

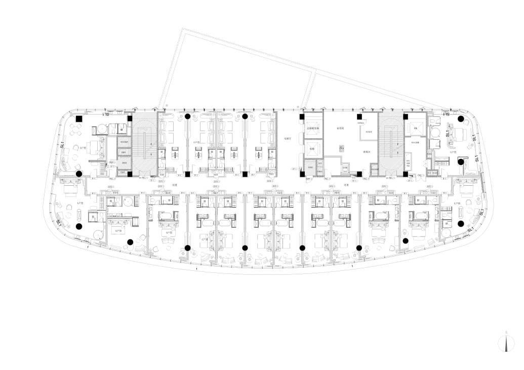
▲客房标准层平面
精神意识通往时间,通向无尽。一个建筑的重生必然有属于它的城市意义,成为滨江线上的艺术节点的便是柏凡·郎朗音乐艺术世界的建筑使命。上海滨江沿线一带已经开始形成自己的艺术序列,音乐艺术世界通过建筑改造和艺术品装置展陈等一系列艺术行为为滨江沿岸注入新的活力,未来这里也将成为城市的艺术圣地,见证建筑与音乐俩种艺术语言之间的碰撞与共鸣。

| 项目信息
项目名称 | Prodor柏凡郎朗音乐酒店
项目位置 | 上海市杨浦区安浦路579号
占地面积 | 8556㎡
设计时间 | 2020.7-2021.5
竣工时间 | 2021.12
业主单位 | 上海中柏房地产(集团)有限公司
建筑改造 | 上海日清建筑设计有限公司
总设计师 | 赵晶鑫
设计团队 | 张铎 冀林娟 申田野 王碧婕 刘佳妮 张子祎
景观设计 | 上海日清建筑设计有限公司
室内设计 | SPD STUDIO 建筑摄影 | 行知影像









