
保利 天汇
Poly CITY GATHER
中国,上海
Shanghai,China
| 前言
多年以前,多年以来,建筑设计师们以快速高效、风格鲜明的方案解题能力为立身之本。大部分时间创作者挖空心思,在短时间内用炫目激烈的手法,去表现一个个程度不同的短促命题。或为项目赋予风格标签,或促项目审批和建设的加速推进,是所谓设计赋能的体现。但在新的经济周期,在复杂的城市更新语境下,这种脚本化、场景化的解题方式受到越来越多制约条件,往往遗憾于拳脚难于尽情施展。
保利杨浦天汇项目位于杨浦的内环核心住宅板块,毗邻海上海综合社区;周边配套齐全便利,交通便捷,城市环境静谧舒适,但用地条件和出让要求以开发企业的角度来看是颇让人踌躇。在2018年该地块经历了首轮土拍流拍之后,有多家地产开发企业针对这块地做过前期可行性研究和产品推导研究,普遍认为容积率高,边界条件复杂,代建品类多,开发难度大、周期长,对未来市场的回报不甚乐观。

◎区位分析
Part 01.
明知山有虎,偏向虎山行
2018年底我们即开始接触用地。在土地取得之前,我们前置了较多的用地条件研究和梳理,也对场地做过多轮的探访。地块建设内容除去住宅公寓,还包括了代建的市政绿地及配套、养老院、江浦社区活动中心、街道办公用房、自持租赁公寓、保障性住宅,基本涵括了近年来上海土地出让能遇到的所有业态种类。甚至于地块东侧打虎山路的南延伸段的动迁和建设,也是这次艰巨的城市更新大课题下的重要组成部分。

◎地块性质及指标
项目所在用地的前身是曾经作为上海轻工业旗帜的上海永久自行车厂,一度年产340万辆自行车而兴盛一时。大礼堂的电影和演出,街坊邻里熟识的场景,是老一代杨浦人的珍贵记忆。然而首次踏访现场,周边街道氛围沉寂而单调,地块内堆砌着成千上万的共享单车,随着互联网热潮的退却被遗忘堆砌于此。时过境迁,历史和现实之间开了一个尴尬的玩笑。空中俯瞰,长期空置的土地以及周边尚未动迁的老旧街巷夹杂在现代化的高层社区和绿荫街道之间,就如致密的上海城市肌理中的一块疤痕,亟待缝合织补。空间肌理需要缝补、街道功能需要重组、新老居民的关系需要重建,是设计开展所需要解决的问题。

◎街区现状问题
而站在市场和产品维度,难题则来自于对新规则的不适应。在以往的设计考量中我们往往都以极致化的货值尝试力拔头筹,不仅仅在容积率较低的中外环,在内环周边的长寿路、石泉社区、虬江路、吴中路,甚至在容积率高达4.14的北外滩新弘项目中,我们都有拉高拍低的叠拼户型出现。不说合不合理,但货值的高下就如考试分数,是相对客观公平的评判标准。而当一线城市执行销售指导价、约定自持配比、约束中小户型比例等政策后,单一的货值估算,尤其是静态货值的高低,已不足以完成对项目的全盘价值评判。土地价值最大化,必然要以新的价值体系来衡量评估。
评价体系的变化,导致需要重新思考答题规则;因为难,所以需要取舍利弊,敢于突破;因为复杂和漫长的建设周期,所以需要更多的依靠体系和流程管理。我们应有新的策略和态度,技巧不再是一招鲜的武器。虽然设计充满挑战,好在设计团队信心满满。因地块毗邻打虎山路,“明知山有虎,偏向虎山行”,成为了团队内部鼓舞打气的笑谈。

◎打虎山路
Part 02.
解题策略
尊重原有的城市记忆,重塑老城区温馨的生活场景;以街道为关注重点,在有限尺度中建立多维度的开放空间,缓和内外关系;给沉寂的原有空间注入新的生机,建立新旧建筑之间的对话;将建筑空间,景观体验以及人的行为结合,提高参与度;重塑产品逻辑,以新颖现代的住宅设计手法,满足居住者在高容积率状态下,对新生活要求的期望;让企业、社区和城市能够长时间的保持相互和谐与生长,实现各自利益的保值增值,是本项目设计的策略。




Part 03.
开放即正义
前两天张佳晶老师话音刚落,“住宅设计应该考虑公共空间和私有空间的互补”,而在保利天汇项目中,这个命题被推向极致。用地南北两条车行主干道均为单行车道,南侧沿街面更仅有20多米宽,空间逼仄窘迫,动线设计捉襟见肘;另一方面,不仅本地块容积率较高,红线周边同样都是高密度高开发强度的社区,开发过程中面临的各个界面不同环节的邻里投诉、对抗对峙是完全不难想象。因此,开放即正义,地块内更大范围、更高品质的开放空间,不仅仅是社区在心理和功能上对外交流的自身需求,也是缓和周边紧张关系的一种对话方式。


◎住宅区空间关系分析
我们通过重新塑造若干微小口袋庭院和休憩空间,为市民的停留驻足和活动提供可能,街道不再只是用来通过和穿越的功能性空间,我们希望营造出一个接一个,能让人驻足停留的城市节点;最早落成的社区文体中心是打虎山路和辽源西路路口的第一个重要节点, 弧形玻璃与圆弧形的广场结合,带来丰富的光影变化,促使室内外空间的对话,成为街角的风景。我们欣喜的看到,居民们在茶余饭后对它评头论足,儿童老人会把它作为愿意停留的趣味空间。在传统街道呈现出的新鲜设计,带来了社会生活的积极参与,促进了不同社群之间的相互认同。




Part 04.
对原有街道的尊重 亦是对土地价值的尊重
北侧沿街的社区公共服务配套设施结合便民商业,立面延续两侧街道的线条比例,较高贴线率结合若干内向的口袋庭院,虽然建筑密度和沿街贴线率很高,但严控沿街面高度,试图消解新建筑和既有道路之间的对峙关系,以饱满但平和的姿态,来丰富街道生活场景。





项目南侧的沿街面极窄,结合持有两翼的租赁住宅,围合形成内外两个不同开放程度的入口庭院,以递进关系步入到社区内部。同时在总图排布上,楼栋朝向尽可能适应街道和现有肌理的脉络关系,将不规则空间以内部景观和围合的院落关系来消解。

◎飞虹路城市空间关系




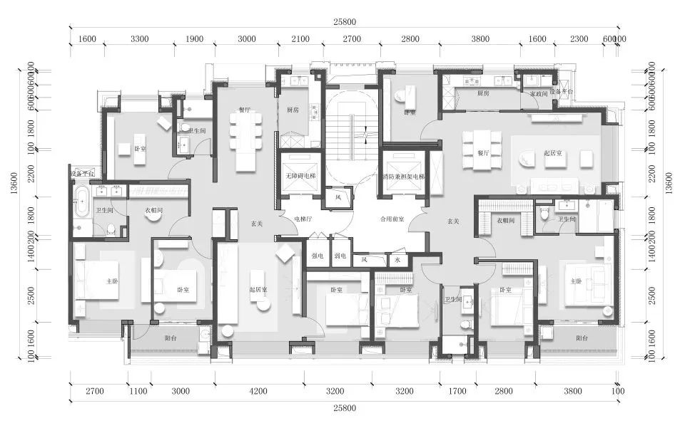
用地周边三面被已建住宅社区围合,受制于周边致密的城市肌理,较为苛刻的退界条件,日照考虑极其严苛。通过对楼栋单体平面和总图的联动调整,因地制宜,整个项目销售业态部分最终落地13种主要户型来实现楼栋布局相对完整的仪式和秩序;通过对户型的多轮推敲和优化,以极致紧凑的100平米两梯两户小高层户型和160平米侧厅多面宽大户型相结合为户型主体,集约化利用每寸土地,也提高了户型得房率。虽然迫于日照压力,拉高拍低的传统绝活,这次很遗憾没能延续,但我们尽可能的提高了一梯二户楼型的比例,提供了超越同时期竞品户型的宽适感受。


◎住宅立面形态




◎户型及室内空间
Part 05.
合作与对话
为恢复城市本来的街道尺度,并最终保留下来大家对于传统生活场景的记忆,在保利发展的支持下,我们和规划部门坐在一起讨论规划控制的优化思路。在很多执行措施上,结合城市风貌的要素控制,对于城市技术管理规定有了创新性的理解。例如东北角的文体中心,大家都能接受尊重路口三边现状的退让关系,并没有一刀切的生硬退线,以饱满的圆弧轮廓,实现了原有城市肌理的补缺。我们认为设计是土地价值最大化策略的生成过程,是城市管理逻辑的延续,是个人对于高品质公共和私密空间期望的最大交集,设计过程不是此消彼长的讨价还价,而应该是共同探寻企业、社区和城市三者利益交集的最大化。


通过对传统街道的风貌研究,对贴线率、街道色彩以及退距退线我们采取更加主动和积极的态度,多方以合作共赢的态度,在给社区街道和城市居民带来实惠的同时,亦保证设计逻辑的严肃与合理,保证项目开发能够经济可靠的运营。


如果建筑项目完全取决于建筑师的控制,在一个持续长的过程中往往会走向失控,而城市更新项目普遍开发建设周期漫长。在杨浦天汇,建筑是一种合作的过程。作为城市更新状态下一种工作模式的探寻,我们认为从控制到合作的转变至关重要。
项目前期,我们的规划和城市设计团队和建筑同事并肩战斗;后期二次设计管控阶段,ACT部门的同事们协助保利发展的设计管理团队,将目标提出在前,甄选、协助专业设计和深化团队。很多幕墙构造节点方面的创新,不仅提出于建筑师,也来自于幕墙深化单位的合理建议和讨论,来自于目前国内材料供应商和节点构造加工水平的提升,来自于很多国内甚至国际一线项目施工过程中的学习和经验总结;和安道、日清景观团队之间的无隙协作,室内单位也能较好的理解和贯彻建筑师对于室内外空间一致性的追求,整个协作的团队处于正向学习,力争更高的表现状态。



Part 06.
辟蹊径
形成具有海派特色的天汇系列立面风格
结合超低能耗和装配化率、BIM要求条件下的全幕墙外立面体系,设计团队推敲形成了一套开发企业针对天汇系列标准化研究的成果。天汇项目强调横向水平线条的立面节奏,户型和外立面协同统一,体型系数规整,展现现代主义的设计原则;针对场景,也一改以往项目光鲜亮眼的高纯色调取向,特意选取稍显沉稳些的立面材质,一方面能和景观及室内相互协调统一,和众多的商业、公服配套设施统一风格。





另一方面,也希望能和周边现有的高容积率建筑,以及绿树成荫的街道环境融入为一体,最终实现低调内敛、简洁大方的高品质住宅形象。通过对幕墙节点的精细化把控和优化,杜绝隐患,提炼细节效果,最终外立面呈现后的落成质量,在今天自媒体发达的网络时代,获得了业主、市民们的好评。作为天汇系在上海的重要一员,杨浦天汇的表现提升了这一品牌的认知和好评,亦成为项目价值评价体系的重要组成部分。




Part 07.
期望
产品价值和城市利益之间不是对立,是对话和交流
在2023年我们复盘杨浦天汇这个2019年开始的项目很具有现实意义。中央提出“住房不炒”七年之后,这句话已经不再只是口号,而实实在在的在市场经济体系下得到验证。即便在居民消费能力较高的一线和准一线城市,土拍市场的冷热不均,商品房销售的下降趋势告诉我们,仅凭一个快字已经不能解决所有问题,也不再是唯一的市场武器。但城市更新的步伐不会停滞,居民改善生活质量,提高居住品质的需求也还在。怎样最大程度的挖掘土地价值,推动城市更新,一直是我们永远面对的课题。

◎项目全景
项目总建筑师宋照青曾经说,建筑并非不变,随时间更替,建筑总以最适地的姿态呈现;人和空间之间如何对话,新与旧如何协调,成为永恒的话题。在保利杨浦天汇项目设计展开的5年时间里,通过缝合城市,活力再造的方式,探索一条城市、居民以及开发企业能够共赢,并且可持续发展的道路,以尊重,开放,对话,合作的姿态来打磨这座“老杨浦的新板块”,使其无缝的融入原来的街道,提升社区价值,向前可对话已逝时光,向后可映照未来生活的模样。这就是我们面对城市更新课题的态度。建筑师David Chipperfield也曾说过:“一直以来,建筑师被看作是带有鲜明风格的天才,每个项目都应该有艺术创作的成分,建筑师是这种创作的控制者。我并不相信这套说辞,即便我们有这种艺术风格,那也不是我们所感兴趣的。因为拥有某种态度,比拥有某种风格有意思的多。”
◎技术图纸(可滑动观看)
工程档案
项目名称 | 保利·天汇
项目位置 | 上海杨浦区辽源西路打虎山路
业主单位 | 保利发展
业主团队 | 马建安 陈慧玲 崔展铭 孙二奇 黄施嘉 陈庆艳
建筑设计 | 上海日清建筑设计有限公司
总建筑师 | 宋照青
设计团队 | 蔡兢凯 郭丹 于璐 王玥明 周显寅 寿劲松 胡天玖 苏衍博 闫雷 吴明 田正韬 曾诗如 王玉戈 刘悦怡 张曼 王龙 沈蓓瑾 黄艺辉 邹丽娜 吴旻琪 王泽暄 曾少鹏
景观设计 | 杭州安道景观与建筑设计有限公司/上海日清景观设计有限公司
施工图设计 | 上海中房建筑设计有限公司
幕墙设计 | 中南幕墙 茅建会TAM
项目功能 | 住宅 租赁公寓 文体中心 养老院
建筑总面积 | 130538.49 ㎡
容积率 | 2.5
建筑摄影 | 吴清山(山间影像)/是然文化
设计时间 | 2019年5月—2020年5月
竣工时间 | 2020年—2023年






