
青岛万科海潮云起社区邻里中心
Clouds of Bay
中国,青岛
Qingdao, China
缘起:从城市到社区
_
当我们观察中国大部分城市时会发现,在现代主义城市化进程的影响下, 社区与城市看似一墙之隔,但疏离感无处不在。连续的封闭边界将社区与城市隔开,固化的边界固化了空间模式,同时也固化了居住者的生活方式。
边界内侧的社区空间趋同,千篇一律,居住在其中的人们无法获取良好的城市体验;边界外侧的街道也不再承载生活场景,活力逐渐消失,城市空间体验愈发枯燥乏味。

◎中国典型城市鸟瞰
本案“海潮云起”大区位于东方之滨青岛的城阳区,属于主城北扩核心区稀缺的低密优质土地,承载着创立青岛城北生活样本的使命。同时,用地所在的胶州湾区域,使地块骨子里天生带有海与云的城市基因。

◎项目区位
在保证全期低密洋房社区以及大区空间品质优先的双重前提下,邻里中心的场地狭小且有很大局限性。其用地位于西侧地块东北角,用地面积仅2500㎡。建成后的邻里中心除了配套功能外,还兼具了社区大堂的作用。

◎用地条件
基于这样的城市背景与场地条件下,我们尝试通过对“边界”的重新定义,给社区和城市带来一个积极的双向反馈,作为对主城中心未来生活方式的诠释。

方法:聚焦研究对象 “the boundary”
_
建筑设计从某种意义上讲同样是个“边界行为”,是对空间的限定,亦是与规范制约的博弈。边界务必会经历由混沌到清晰的过程,也必然会经历分化、消解、形成新边界的过程,因此,对设计而言,边界既是终点,同时又是起点。

◎马列维奇画作
我们更愿意去相信,边界是不同事物之间的相互消融、互相渗透及融合统一。所以,这个边界,应该是流动的、多变的也是开放的。
设计:寻找边界,消解边界,融合边界
_
- 寻找边界:边界的衍生与立体化 -
边界之界线似有若无,我们使其跳脱出红线与退线的制约,在二维界面上让其延伸,放大平面区域,拓宽内与外之间的过渡区域;同时在三维空间上使其生长,并保持整体的逻辑统一。
由此,边界所处的一条细线处变成建筑与场所,忽略边界的内外两侧,进而聚焦于二者间入口的潜能之上,尽可能地提炼出边界建筑的可行性。

◎边界二维延伸与三维延伸
- 消解边界:边界的打破与空间置换 -
多维度延展使原有的边界被打破,同时使其自身从限制区隔空间的单一作用拓展为容纳并创造空间。围墙、建筑、场所形成一个整体,不仅是形式上的相连,也是空间上的互融。

◎项目鸟瞰

◎垂直拆解
围墙与建筑的表皮翻折延伸共同组成了一个立体的序列,把庭院与室内空间同时纳入到边界里,使二者不再有内外的区隔。同时打开入口、庭院上空等顶部空间,内外在无数个类似的地方开始洄游并发生紧密的关系。

◎沿街立面


◎街角局部图
街角抬升:除了对城市必要的退让之外,将角部景墙底部上抬了一个高800mm的洞口,结合街角高差形成若隐若现的视线关系,去体量感,增加通透度。




◎内院
围墙顶部打开:景墙上部在各处开有洞口,成为庭院与吹拔,植物从内而外生长出来,溢出了边界,感受空间的流动。





◎庭院局部
- 融合边界:边界的重塑与场景注入 -
原本的单一的物理边界通过设计手法转变为广义的空间与场所,如同海与云之间的区域,依稀似有分界,但又缠绵无垠。传统社区与城市的对立,在这座邻里中心所处的“边界”上消弭无形,取而代之的是未来多元的场景单元与生活体验。


◎总平面图&场地立面

◎基地场景

◎基地实景
外部从金色梧桐归家大道、3200㎡自然氛围+网红气质的云起公园、到内院的记忆大树,以及水之院、森之院两重院落一体化打造最美的归家路径。让公园、街区融入社区,同时,承载了美好生活的社区也反过来融入城区,实现城市场景升级。


◎立面图

◎沿街场景

◎沿街实景
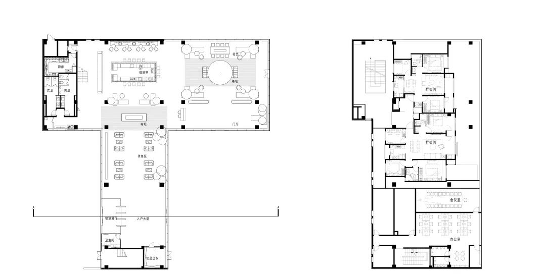
项目内部以co-life超级吧台为中心,衍生出综合书吧、花艺互动区、文创手作区、X功能区、社区大堂、轻社交会客聚会区、快递取送点、自动贩卖区等复合功能。营造优质社区底盘与城市街区紧密相融、共享共生的主城社区生活方式。
在不远的将来,这些功能与场所在使用中必将相互影响和交融,创造和展示出特属万科品牌的文化基因和生活理念,同时也代表了我们对未来社区与城市关系的倡导方向。

◎平面图

◎剖面图

◎室内场景
- 边概念在细部上的延伸 -
值得一提的是,出于对设计叙事的完整性考虑,我们在幕墙细部做法上,同样对边界概念进行了进一步的诠释。


◎幕墙示意图
出于对场所感营造的需要,为了使邻里中心二层的体量既有轻盈漂浮感同时又区别于首层的完全通透,我们采取了双层幕墙的构造做法。内侧一层是双层中空玻璃,起到保温的作用;外侧是两种不同反射率的Low-e玻璃(反射率11与反射率25)交织拼贴,既起到遮挡构造柱的作用,又形成相对完整的界面。映射出天边的层云与摇曳的树影,与水院的波光粼粼形成上下的呼应。

◎三维结构模型/草图
在幕墙细部构造中,两层玻璃间的竖向钢构的既是龙骨,也是装饰构件,模糊了力学与美学的边界。起到支撑幕墙的结构功能同时,也作为装饰语言消隐在二层体量的肌理中,另外也缩减了构造厚度。
结语
_
在高速城市化的大历史背景下,如何处理好社区与城市的关系,是一个始终伴随我们的命题。在青岛万科海潮云起项目中,设计团队在大区局部利用邻里中心做了一个小小的尝试,用发现、消解、重塑边界的设计方式,打破传统社区与城市之间的物理边界,从而让这个区域被多样化的体验空间与生活场景填充。营造积极的社区与城市的关系,同时也助力万科在青岛城阳核心主城区打造城市理想人居的生活样本。
工程档案
项目名称 | 青岛万科海潮云起社区邻里中心
项目位置 | 青岛市城阳区
业主单位 | 青岛万科房地产有限公司
业主团队 | 赵传帅 徐墨林 田超 苏彦铭 马文博 刘向阳 徐施玉盟
建筑设计 | 北京日清建筑设计有限公司
设计总负责 | 宋照方
设计团队 | 李昂 孙达 赵彤 王毅刚 李飞
景观方案、施工图 | 凯盛上景景观规划设计有限公司
建筑面积 | 1515㎡
竣工时间 | 2020年8月
建筑摄影 | 远洋





