

融创·中原壹号院
Sunac Central One Park
中国,郑州
Zhengzhou, China

安藤忠雄在《在建筑中发现梦想》一书中提到:“ 城市文化最重要的意义,在于作为人们共有的原始记忆,能够超越时代流传下去。”
城市的文化由建筑而塑造,住宅,作为众多建筑类型中的一种,因为其日常性和快周转性,往往呈现出风格化、标准化、同质化。


如何在住宅项目的设计中探索建筑与城市的对话,建筑与文化的碰撞与传承,在日照、限高、成本等众多限制因素的条件下,建筑师能否挖掘出独有的创作空间。在通过对融创中原壹号院全程设计的回顾,浅谈一下对当下住宅建筑设计的一点思考。

01
“ 规划策略:一个书院、九个院子、九经九纬规划布局 ”
_


◎任治国手稿
通过多次模拟比较,在日照限制、户型面宽、景观资源和土地价值最大化的多重约束下,我们确定了南北六排多层的建筑布局,尽可能采用双拼楼栋,中间采用双拼楼栋,幼儿园布置在地块东南侧,形成九经九纬、外城内城的规划设计布局。


为了打破建筑排布的强排感,在地块中间创新设计一梯一户户型,形成地块核心高价值户型产品,同时注重社区主入口南大门的设计,强调回家动线的仪式感,在地块南北纵轴设置社区书院会所,整体形成一个书院、九个院子的规划设计。

◎中原壹号院规划布局图
02
“ 户型策略:面宽与资源的合理化应用 ”
_

◎拼接住宅立面及空间院落

◎双拼住宅立面及空间院落
初步的总图确定,给户型设计预留了空间和设计条件,在具体的户型设计上,我们一方面尊重营销的反馈意见,同时也充分研究融创对于高端改善客群居住空间诉求的经验积累。

在保证整体户型设计统一性的前提下,将一梯一户、顶层四合院等一线高端改善居住体验应用于中原壹号院的产品设计中。

◎一梯一户住宅立面及空间院落

户型的创新型设计,顶层四合院定制设计及一梯一户产品设计,根据后续营销反馈,该产品的设计得到了客户的认可,并实现了高单价高总价的快速去化。

◎顶层四合院定制户型 ◎一梯一户定制户型
03
“ 立面设计策略:追求线、面、体的立面设计哲学,强调细部的刻画与雕琢 ”
_

区域地块规划要求新中式立面设计风格,项目周边是一些传统的Art Deco辅加一些中式的符号和元素,形成了一些堆砌的符号性建筑立面造型。

在中原壹号院的立面设计策略上,我们希望能够从城市文脉出发,寻找能够代表中原审美高度的建筑语言,以对城市审美取向的洞察与尊重,探索一条属于中原封面的建筑之路,这个也作为中原壹号院立面创作的背景。
正如贝聿铭所言,“艺术和历史才是建筑的精髓”。对于中原壹号院来说,其精髓在于如何将文化与设计感进行融合,从而决定立面的形象与构成方式。


体验区以“点、线、面、体”的设计手法,摒弃冗余,减少琐碎,勾勒出中原壹号院简洁大气的立面形象。


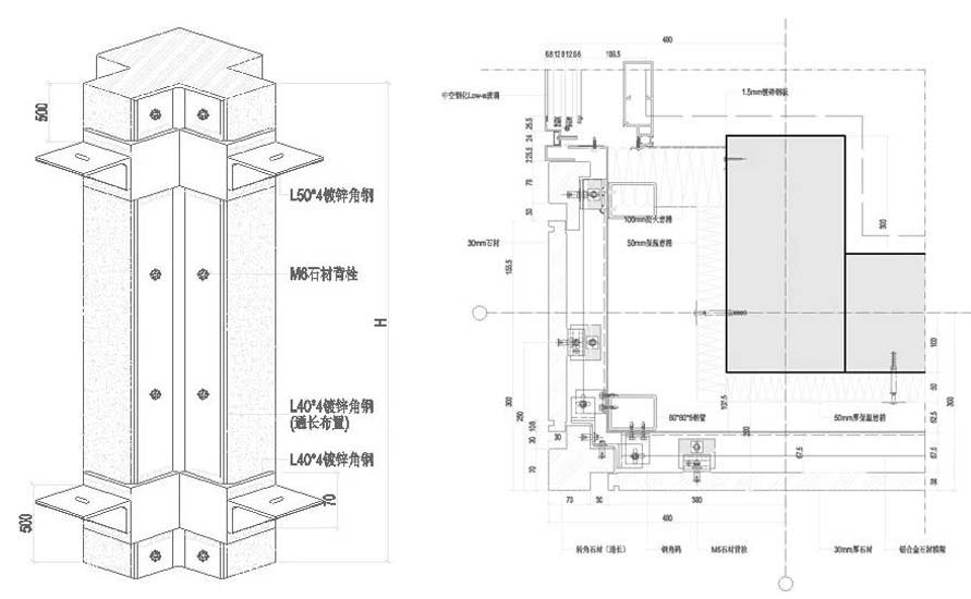
屋顶挑檐使用的是在航空航天等高精尖产业应用的5系铝板。5系铝板一般铝厂极少存货,密度小、质量轻、强度高、耐腐蚀、易于涂色、散热性能好、抗压性较强,施工工艺中对强度、平整度、色泽要求极为严苛,建筑产品极少采用。
在施工中,从外面看不到一颗螺丝钉,不见一丝胶线,全在里面固定。这种工艺不仅极为复杂,也极富挑战性,但是中原壹号院迎难而上,敢为人先。


◎屋顶铝板挑檐节点
为了让建筑的棱角更加挺拔、更加俊俏,每个转角都选用一根3米长的完整石材进行安装,比传统的海棠角更加自然流畅,但为之付出的代价是从林林总总的矿料中选取大于3米的荒料,再进行加工、运输、安装,不仅成本大大增加,而且施工难度倍增。

◎转角石材三维示意图(背面) ◎转角石材平面图
◎转角石材节点
在安装工艺上不打胶、不勾缝的石材干挂工艺。石材之间竖向沟槽仅只2毫米,这就要求上千块石材的加工精度严格控制在2毫米之内,此种工艺堪称宝石级切割工艺,对于建筑施工却极为罕见,以至于一名石材安装熟手在三名搬运工的配合下,一天仅能安装8块石材。
如此精度的石材,机器无法切割沟槽,所有沟槽皆由人工打磨。因为全是人工劳动和技艺的结晶,中原壹号院幕墙石材的缝隙,充满着人性的律动,被称为“会呼吸的石缝”。

◎阳台节点

作为晶钻幕墙的重要元素,幕墙玻璃采用南玻集团生产的8+12+8+12+8的双银LOW-E玻璃,且充氩气。
为了保证这种双银玻璃色彩纯正,在玻璃原片生产时就与厂家保持沟通。
04
“ 体验区设计策略:中轴书院结合下沉庭院实景体验 ”
_


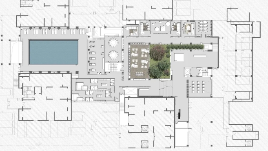
体验区结合南入口、书院、下沉庭院设计,由地面接待门厅和地下会所组成,会所泳池、健身房等功能实景展示。



技术图纸
_

◎会所下一层平面图

◎会所首层平面图

◎会所二层平面图
工程档案
项目名称 | 融创·中原壹号院
项目位置 | 郑东新区如意东路朝阳路交汇处
业主单位 | 融创华北区域集团
业主团队 | 融创中国华北区域产品研发中心 郑州公司研发平台 中原壹号院项目团队
建筑设计 | 上海日清建筑设计有限公司
设计总负责 | 任治国
设计团队 | 魏华伟 谢萌 张琳 杨新宇 刘芯竹
景观设计 | TOPO建筑环境设计公司
室内设计 | 李玮珉建筑师事务所
施工图、幕墙设计 | 天友建筑设计股份有限公司(郑州)北京凯华创佳工程咨询有限公司
幕墙施工 | 无锡王兴幕墙装饰工程有限公司&北京东方泰洋幕墙装饰工程有限公司
建筑面积 | 142796.09 ㎡
设计时间 | 2016.10
竣工时间 | 2020.3
建筑摄影 | 是然建筑摄影 Schran Image&行知建筑摄影








