
裕华铁炉市民中心
Yuhua Tielu Civic Center
中国,郑州
Zhengzhou, China
“建筑要满足维特鲁威所提出的实用,坚固,美观三大要素,就必然是复杂和矛盾的。今天,在城市和区域规划中,不断扩大的建设范围和建筑规模,为其增加了难度。我欢迎这些问题并揭示其矛盾。我接受矛盾及复杂,目的是使建筑真实有效和充满活力。”
——文丘里《建筑的复杂性与矛盾性》



项目背景
_
裕华铁炉市民中心位于郑州市中原区,西邻西四环,东临一号地铁,路网覆盖完善,周边处于城市快速开发的建设阶段。裕华铁炉市民中心是一座集养老、医疗、文化、展示、警局为一体的高效叠合空间。未来这里将是周边居民的开放性场所——多元灵活、开放共享的社区邻里中心。

◎宏观区位分析

◎周边区位分析
设计理念
从市民公园展开的空间叙事
_

◎场地分析
裕华铁炉市民中心北面紧邻市民公园,这里是富余生活气息和民众趣味的场所。每天不同时刻,公园里都演绎着不同人不同的故事。裕华铁炉市民中心以市民公园为起点,展开邻里生活的空间叙事。


在场地设计中我们结合天际线规划,将高山、流水、玉石、明镜植入到方案当中。为了和北面市民公园和谐相接,不对其产生强烈的压迫, 设置成了南高北低的两种建筑高度。南楼高层暗示高山,中庭寓意流水,北楼象征玉石,而北侧水景则是清澈见底的明镜之水。


◎体块生成
诗意地建筑布局同时,也合理的解决了消防疏散的规范问题。如果说诗意理念是建筑设计的灵魂,那么理性的规范达标则是支撑建筑的生长骨骼。


便民生态圈
“ 它必须是便于抵达,功能清晰,受人认同的。”
_

◎功能分析
市民中心是源于新加坡的社区服务概念,是集合了多种生活服务设施的综合体,主要解决附近居民的基本需求,同时兼顾辐射范围内的居民的文化需求,以及其他便民行政服务。实质上应该是对家庭住宅的生活场景外延,是社区公共性的集合。当我们在讨论邻里中心设计的时候,也是在思考如何营造一个让邻里关系发生的场所。

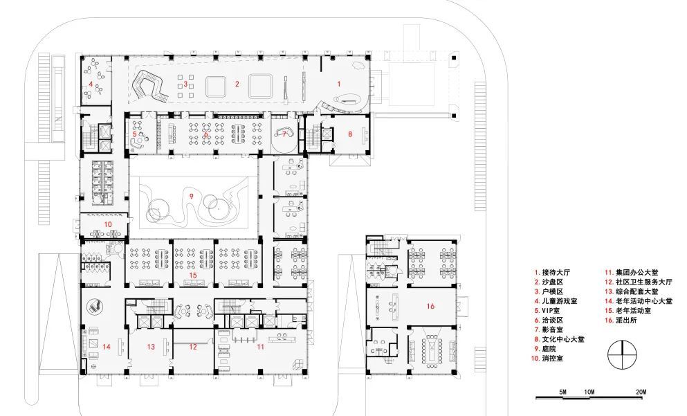
面对项目多重功能叠合的使用要求,在 8529 平方米的用地条件下塞下 16883.06 平方米的建筑体量,集中布局方式有利于使用效率的最大化提升。我们将功能需求进行分类梳理,对相近的功能进行有机融合。此案的市民中心设计平衡了公共服务和集团办公之间的关系,通过体块分区化、流线合理化区分出了独立的功能空间和服务设施。

◎建筑分析


◎建筑模型
将基地有限的南向首层面积让给需求最高的养老服务中心,考虑到社区卫生中心和养老中心可以共用医疗设施, 将其设置在相近的楼层。再往上是社区服务和社区文化,集中通过社区大堂的垂直交通串联这四大功能。


办公布置在南楼最高处的四层,通过层高的抬升来打造相对独立于邻里中心的私密区域。集团办公的顶层是员工餐厅,无论是功能上的划分还是设备上的需求,顶层餐厅是相对合理的布局。




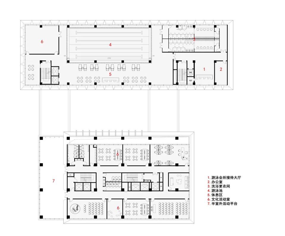
北楼前期作为售楼的展示中心,后期改造为文化生活的一部分。四五层设置健身中心,并且拥有一个 250 平方米的游泳池,这里属于社会文化活动的功能衍生。


细节之美
“ 清晰构图,回应复杂”
_
裕华铁炉市民中心作为未来整片社区的最重要纽带和展示中心, 在外观上应该具有标识性,可以建立起人们对场所的认同感。建筑整体采用幕墙系统,提升现代感。建筑基座选择米白色倍仝石,沉稳厚重。在南楼中间的盒子和北楼顶部的盒子采用银色拉丝铝板,赋予建筑以简洁现代的观感。

◎剖面分析
极简的形体及材质对构造节点的设计和现场工艺的把控提出了严苛的要求。本案通过清晰的构图和精准的施工, 回应复杂的场地关系与设计任务,删繁就简正本清源。


结 语
_
裕华铁炉市民中心是应对复杂功能组合的一次实践,利用现有的场地条件,最大限度活化周边环境、提供高品质公共空间。
希望这里能为未来社区的生活带来些许便利,打造成一个多元灵活、开放共享的空间场所,提升城市公共空间的独特性和艺术性。
技术图纸
_

◎总平面图

◎首层平面图

◎五层平面图

◎标准层平面图

◎北立面图

◎西立面图
工程档案
项目名称 |裕华铁炉市民中心
项目地点 | 河南省郑州市中原区
业主单位 | 裕华集团
建筑设计 | 上海日清建筑设计有限公司
设计总负责 | 宋照青 赵晶鑫
建筑团队 | 陈良鹏 刘晓理 汪丽霞 杨国栋 关林欢 李哲翔 黄倩媛
景观设计 |上海日清景观设计有限公司
室内设计 | 近境制作设计
占地面积 | 2724.58 ㎡
建筑面积 | 29278.74 ㎡
项目时间 | 2019-2021
建筑摄影 | 行知影像





