爱民弄“微更新”改造
Ai Min Lane Renovation
中国,上海
Shanghai, China
里弄的细胞疗法
细胞疗法是把健康的干细胞移植到体内,以达到修复或替换受损细胞或组织,从而达到治愈的目的。
承载着上海近代历史的石库门里弄如同上了年纪的老者,存留了风华,却在时光里老去。而针对里弄的改造就如同细胞疗法,从修复或替换老旧破损的各个设施出发,以点带面,从而达到改善整个里弄环境的目标。
爱民弄
——宁波路587弄·原慈安里
宁波路587弄原名慈安里,是二十世纪初上海的一位犹太裔房地产大亨哈同在1931年建造,砖木结构,总面积为1318平方米,由弄内三排石库门里弄住宅和周边一圈底层为沿街商铺的里弄住宅组成。
解放初期好八连曾露宿在此。1983年以来,南京路上好八连与街道、居委始终保持共建关系,留下很多佳话。为了宣传和弘扬好八连精神,体现军民的鱼水深情,慈安里更名为爱民弄。

◎爱民弄旧貌
随着时间的推移和各类业态的入驻,如今爱民弄巷弄内承载了太多的功能而显得杂乱不堪。所有的设施都功能单一。不同的功能主体不但侵占了过多的巷弄空间,也干扰了各自的使用。并且各类设施都有不同程度的破损。
问题和矛盾往往是故事的开始。
再设计
——里弄的动静分区与功能梳理
设计师将工作的核心总结为动静分区以及功能梳理。
在现场勘测和初步分析后,将交通量少且建筑界面完整的巷道划分为静区,设置步道,健身区和娱乐区;人流量较大的主巷道则划分为动区,提升路边景观,设置休憩设施。通过不同材质和颜色的铺地体现不同的区域。并用连续的步道将不同的区域串联起来。
在此框架下,改造设计工作被分成四个大项,十二个分项。

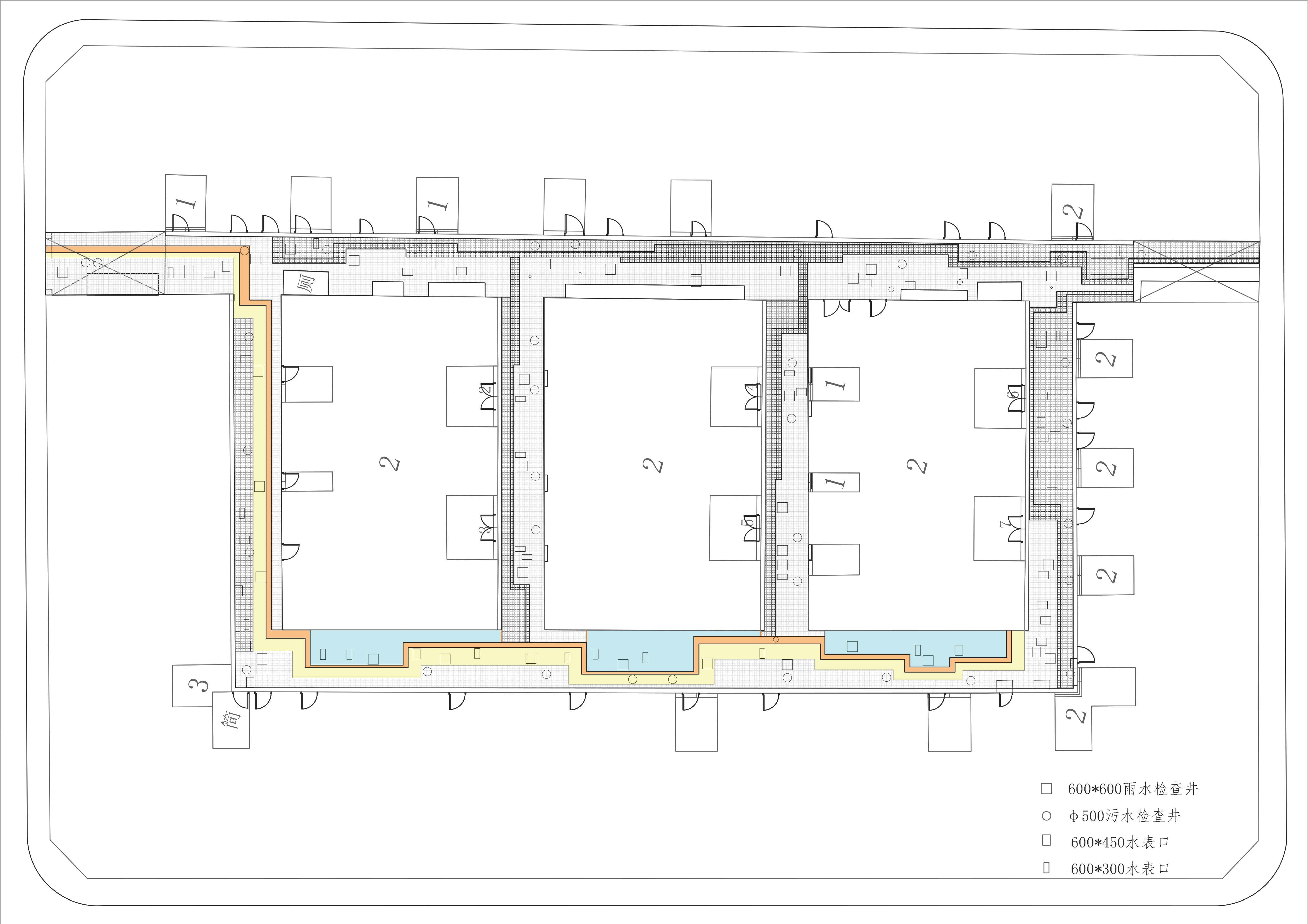
◎爱民弄总图
通过对这十二个节点的重新设计,带动整个里弄环境和面貌的提升。如同在十二处注射多能干细胞,替换老化损坏的细胞,从而改善整个机体的状况。

◎改造分项
入口优化
Entrance Improvement
首当其冲的是入口处的改造升级。原有的大门老旧,缺乏设计。入口空间破旧凌乱。

◎入口处旧貌
设计师重新设计了门头和大门,使入口门头回归原有立面风格,且不再被周边的店招所埋没。同时梳理了入口处空间,增加了吊顶和展示背景墙,美化了空间形象。


◎改造后次入口

◎改造后主入口背景墙
步道更新
Pavement Renovation
设计师根据动静分区的原则梳理了交通流线,采用了新的地面铺装,引入了休闲长凳和新的植物,令原本灰暗的巷道再次焕发活力。居民也有了新的休闲社交场所。

◎原有步道

◎步道更新效果图


◎改造后步道
设施改造
Utilities Renovation
爱民弄原有的生活设施功能单一,美观和维护上都欠佳。设计师总结出十项需要改造更新的设施,囊括了自行车停车区,公共晾衣架,水斗,厕所,警卫亭等。在优化功能的同时美化巷道,亦是道路亦是景。
丨公共晾衣架 · Public Laundry Rack

◎原有晾衣架
原有的晾衣架和电线混搭在一起,杂乱无章,影响上空界面。设计师通过理线槽将电线梳理干净。又拆除了步道上空晾衣架,统一在弄堂里日照最充足的四个道路交叉口设置造型独特的公共晾衣架,并整合进LED灯带。既能亮化巷道交叉口,又可以解决里弄晚上的照明问题。

◎晾衣架效果图(日景&夜景)


◎改造后公共晾衣架
丨垃圾房 & 厕所 · Garbage Room & Toilet
原有垃圾房,厕所形象不佳,卫生情况堪忧。厕所内部缺乏采光。

◎原有垃圾房 & 厕所
设计师给两个设施设计了全新形象,下部与周围建筑的线脚跟通,上部采用玻璃顶。增加内部采光的同时,减少了形体造型上的突兀感。


◎厕所 & 垃圾房效果图

◎改造后垃圾房

◎改造后厕所
丨综治中心背立面 · Comprehensive Treatment of Social Security Center
综治中心的背立面作为一个稳定完整的界面并没有得到充分的利用。设计师将原有窗户改为高窗,能避免与居民的视线干扰,也省去了防盗窗的做法。在墙体上设置整合了雨棚,坐凳和吧台功能的一体化装置,满足居民休憩,娱乐的需求。

◎综治中心背立面效果图


◎改造后综治中心背立面
丨警卫亭 · Guard Room
原有警卫亭功能布局不合理,作为入口构筑物形象欠佳。设计师重新调整了警卫亭布局,增设观察窗和快递收发口;面对巷道的立面采用全玻璃面,美化立面的同时利于警卫人员观察小区进出人员;将原有放在屋顶的空调外机整合进警卫亭,使警卫亭成为完整功能的个体,利于在工厂预制并作为标准化做法进行推广。

◎警卫亭效果图


◎改造后警卫厅
丨花池 · Flower Bed
原有花池老旧且被杂物垃圾占据,失去了景观作用,也无法提供休息歇脚的功能。

◎原有花池 & 改造效果图
设计师重新设计花池,加入了歇脚坐凳的功能。造型上与水斗呼应,采用斜面和倒锥形,减小体量感的同时增强美感。



◎改造后花池
丨水斗 · Wash Basin
原有的户外水斗破旧不堪,卫生情况不佳。

◎原有水斗 & 改造效果图
设计师放弃了易破损难清理的花岗岩材质,选用了更耐用且易清理的不锈钢材质。造型上采用倒锥形的设计,弱化体量感。水斗上侧设置了盖板,平时使用时,翻开的盖板可以充当扩充台面;不使用时盖板可以避免上方杂物掉入水斗,便于在水斗里存放物品,也保证了外观的整洁。


◎改造后水斗
丨入户雨棚 · Rain Shelter
原有入户雨棚参差不齐,影响建筑立面。且存在违规搭建的情况。
改造设计后统一了雨棚造型,用极简风格,减小对上空界面的干扰。

◎入户雨棚效果图

丨植物配备 · Plant Configuration
在巷道狭小,光照不足,空间有限的环境下,植物类型的选择显得尤为关键,既需适应常阴环境,又可匹配整体风格。几轮甄别后,选用紫藤、凌霄作高处植物,松红梅搭配石竹作中间灌木,常春藤作底部植被,丰富了绿化层次,使整体景观更显灵动出彩。
设计总结
Design Summary
老弄堂的改造不光是对历史情怀和旧有格调的挖掘,更是在新时代下的设计探索。在项目的进行过程中,不但需要克服重重的更新阻力和施工困难,还要在各方面势力的博弈中找寻坚持和妥协的平衡。可以说每一次的改造设计都是一次城市更新课题。
在爱民弄的更新改造中,设计师抛出了两个问题:
如何将传统融入当代生活?
如何在不足的空间中延伸出新的功能?
设计师在实践中给出了自己的答案。而关于这两个问题的思考和解答还远远没有结束。
结语
——爱民弄项目改造

承载着老上海格调和拥军爱民历史的爱民弄,静观相邻的中华第一街的百年沧桑,逐渐在时光中老去,却依稀残喘着儿时记忆里的那抹温存。一扇门头、一堵老墙、一席铺装,通过微更新的设计,重新焕发出顽强的生命力与感染力。而被唤起的不仅仅是弄堂本身,还有再次爱民的情怀。
爱民弄微更新的故事结束了,但城市更新的故事还在继续。






