
太原万科公园大道
Taiyuan Vanke Park Avenue
中国,太原
Taiyuan, China
背景解析
-
保护自然山水格局,传承历史文脉,定位城市形象,塑造城市风貌特色和空间意向,引导城市健康有序发展”是山西省对城市设计提出的主要任务。而太原市位于山西省境中央,坐拥汾河和晋阳湖,城市价值在北方城市中更属凤毛麟角。作为太原都市圈的核心城市,近年来太原市总体“南移西近、北展东扩”,持续彰显着中国特色魅力。
基地位于太原市晋阳湖东岸(生态居住景观区),环湖东路以东,健康北路以北,处于省体育中心视线通廊之上。作为太原市最重要的滨水区域,在总体东岸城市风貌设计中显得尤为关键。

△区位
项目以地标性的美学建筑、多元产业的商务平台,融入晋阳湖发展经济带,打造“总部基地、滨湖酒店、商圈业态”等商办资产,为商务精英提供全新办公体验。

△晋阳湖经济发展带
现状剖析
-
基地周边多为居住、商业服务、教育科研及文化设施等用地,开发情况较为复杂。
建路不见巷 连贯却孤立
周边道路路幅均较宽,导致公共空间联系度较差,不利于生活性道路氛围的营造,。
有格局无格调
东岸南北向天际线界面单一,变化较少,缺失东岸区域视觉焦点的核心地标。
厚文化薄建设
建筑多以土黄色、灰色的古典简约风格为主,不适应新时代风貌要求。

△现状
概念追溯
-
“三面环山、一水中分、一湖点睛、九水环绕”的水韵格局给予龙城最为独特的城市浪漫。规划上以城市会客厅为主线,为城市唤新境,统筹优化晋阳湖东岸的环境要素。建筑上以水为镜,以云为介,创造“水云之间”的场所精神,演绎当代艺术的刚与柔,塑造地标式的城市名片。

△ 概念意向图
方案呈现
-
建筑西邻城市绿带,南贴城市主干道,展示界面仅西南两面,考虑周边住区日照条件,将三栋高层办公分散布置在地块西侧。底层设置连续商业,两栋高层建筑群组之间设置文化休闲广场。与西侧晋阳湖公园及东侧住区中央景观形成三个空间节点,相互渗透。

△ 鸟瞰实景

△ 鸟瞰实景

△ 鸟瞰实景
体块演变
-

△ 体块演变

△ 轴测图
立面设计
-
整体以中间塔楼为中心,呈现丰富的天际线景观,新颖独立,极具地标性。裙房采用整体的界面设计,营造入口广场及街区开敞延续的空间感。






立面采用统一中寻求对立的手法,强调竖向元素,表现群体挺拔向上的时代力量。加以玻璃虚体打破均质肌理,以错落有序的韵律对话晋阳湖景观,似云与水的交融。建筑顶部设计镂空构架,模糊建筑与天的界限。


△ 立面图
材料选择
-
建筑采用幕墙系统,运用大量的银色铝板及穿孔板,赋予了建筑简洁现代的观感;搭配深色铝板及涂料,强化立面关系;在玻璃的选型上,通过多次的打样对比,严选玻璃效果,以表现设计意图。

△ 材料
节点设计
-

△ 节点1

△节点2
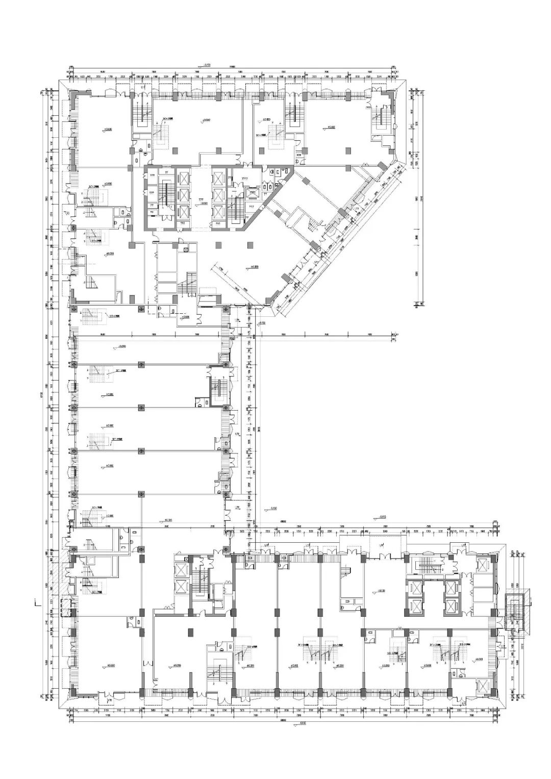
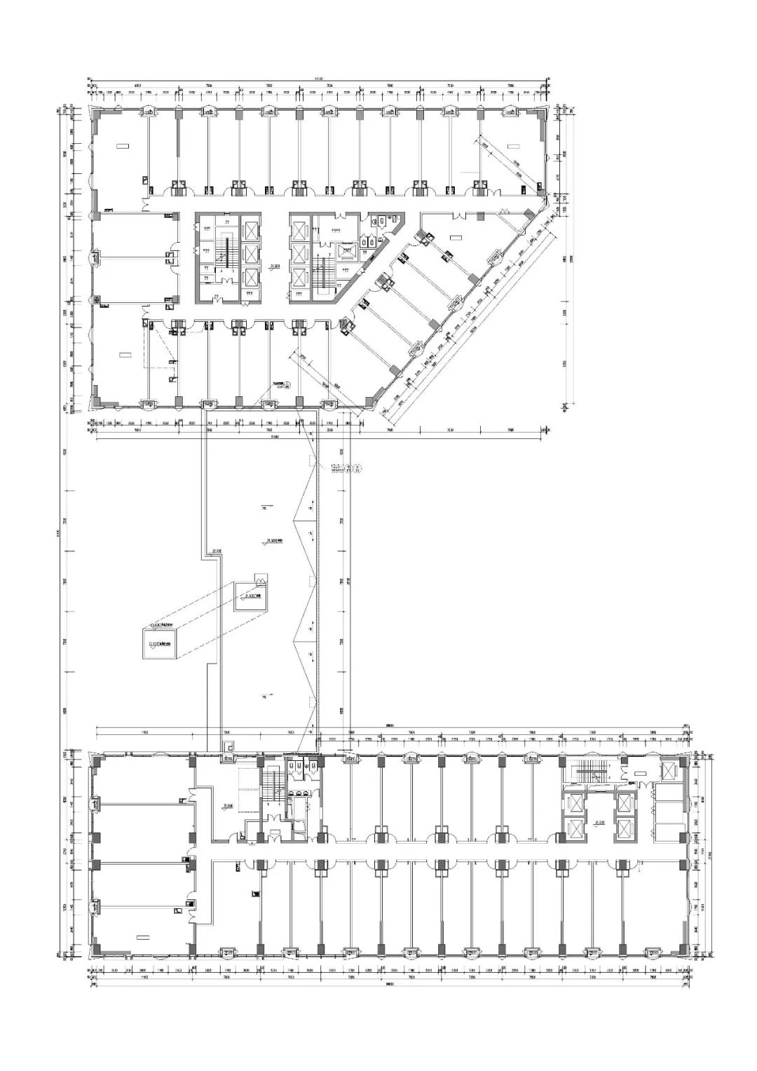
产品设计
-

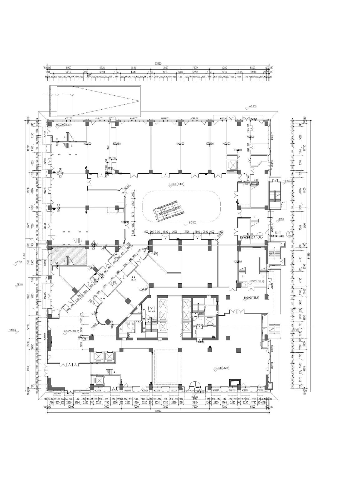
△1#首层平面图

△1#标准层平面图

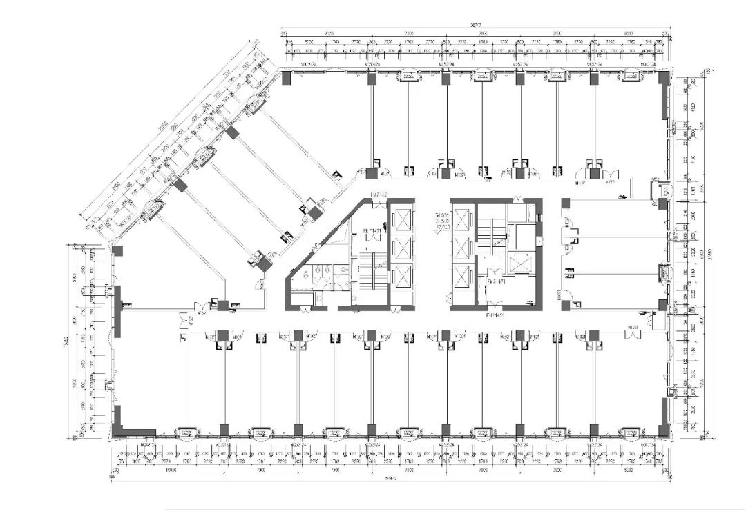
△2#首层平面图

△2#标准层平面图
项目结语
-
2023年,是晋阳湖片区正式醇熟的一年。
空间的实景呈现仅仅是开始,企业入驻后的服务与运营,更是未来的价值所在。随着晋阳湖片区发展愈加成熟,将吸引品牌餐饮、国际家居、商业知名品牌等各行业龙头企业的入驻,进一步推动晋阳湖片区特色产业链向多元复合的趋势发展,在区域内形成新兴的、时尚的、活力的商业新地标!
工程档案
项目名称 | 太原万科公园大道项目
项目位置 | 健康北路以北、环湖东路以东
业主单位 | 太原南馥房地产开发有限公司
设计单位 | 上海日清建筑设计有限公司
设计总负责 | 宋照方
方案设计团队 | 潘小波、李俊超、沈晨云、胡敏娜
建筑摄影 | 行知摄影
建筑占地面积 | 32449.6㎡
建筑面积 | 13.95万㎡
项目完成月份丨2022年9月
建筑材料丨银色铝板/穿孔板、涂料、高反射LOW-E玻璃
施工图设计丨太原市建筑设计研究院


