
盐城东湖心语商业
Yancheng East Lake Xinyu Commercial
中国,盐城
YanCheng,China
| 前言
中国城市在过去四十年的快速发展中亦快速失去了自身的文脉传承,城市中充斥着千城一面的现代建筑或是所谓文化传承的仿古商业街。现代建筑设计亦不应沉醉于梦幻奇观般的造景或浅薄的表皮的复制,传承传统在地建筑的空间场所精神、文脉源流,并以当代的建筑语言去呈现,亦是一种更深刻的设计思考。而商业空间的设计,亦受到网购潮流与后疫情时代这双重背景的影响而发生深刻的变化。当代的实体商业建筑急需在运营及空间模式上进行更深入的思考,来回应场所的地域性、网购潮流与后疫情时代这一共同的时代背景。

◎水院入口

◎水院入口回望
| 快速城市化下商业建筑发展背景
快速发展下城市文脉的断裂、网购的出现及蔓延、疫情的对人的行为习惯的影响成为促使传统实体商业模式转变的三大因素。
01 城市文脉断裂的影响
中国城市在过去四十年快速城市化过程中亦快速失去了自己的文脉的传承,千城一面与虚假的借着文化传承名义的仿古表皮建筑大行其道。无数城市将陆家嘴奉为圭臬,力图创造自己的国际化大都市形象,全然不顾自身的文化传承与经济条件。而场景化仿古商业街又将城市面貌推向了另一个极端,一种不加思索的粗浅的文化回应。
在现代建造及时代审美的当下,我们需要找寻出第三条路径,一条基于现代建造技术与当代建筑美学的传递在地的场所文脉的空间设计路径。

◎盐城老城民居
02 网购时代的影响
随着2010年开始移动互联网的普及及全国物流网络的建立,网购伴着这股春风迅速发展起来。无论是电子产品还是衣物家居,都已可以做到足不出户购遍全球,传统商业中心又由于物业成本以及渠道问题无法与网店竞争,带来了大量实体商业倒闭的困境。
本身仅剩不多的实体商业的餐饮店以及儿童教育,又由于外卖的兴起以及双减政策的实行而变得雪上加霜,实体商业,尤其是体量有限的社区型实体商业如何运营、空间如何更新才能够迎接挑战,将客户重新引导回实体商业中心。
03 后疫情时代的影响
2020年开始持续三年的疫情,又令本已生存经营艰难的实体商业雪上加霜。频繁的隔离,严格的检疫政策以及对于卫生安全的担忧,令客户不得不悄然改变消费习惯,刻意减少进入商业中心的次数。
而对于健康的关注又潜移默化影响了新时代市民们对于健康生活方式的追求,近年大火的户外露营、骑行便是新的趋势。人们在消费习惯及行为习惯上更加拥抱更为健康的生活方式。
SHOPPING MALL失落了,安福路为代表的街区林荫商业火了。商业空间的设计及新的运营的思路,亦需吸取这样的经验,才能适应新时期的发展。

◎河对岸视角
| 东湖心语商业项目的抉择
本项目位于盐城东开发区城市运动公园及运河边,周围遍布的政府单位及居住区、迎宾馆等设施,是典型的中国城市新开发区。而场地自身也具有典型中国城市开发区的特点,缺乏地域性的特征与高速城市化下的粗糙。项目自身又将成为周边新城开发重要的商业服务与滨水公园公共服务节点,带着对盐城在地场所地域性以及当下实体商业窘境的思考,本项目的设计得以展开。
◎方案生成(左右滑动可查看)

◎建筑空间与水共生
01 水岸场所精神的诠释——运河公园及立体街道的引入
盐城介于江南水乡与北方平原之间,传统建筑空间既有着江南园林的婉转与白墙黛瓦的文雅,也有着北方砖石建筑的浑厚。传统空间模式更是重视建筑室内空间与外部环境空间的融合,水与天空更是与砖木的建筑主体一同构成了完整的传统建筑空间的呈现。而本项目的设计,亦希望由此提取出空间设计的母题,为建筑空间带入环境的要素,令现代建筑空间同样产生传统建筑的天人合一的场所感受。
而后疫情时代市民关注健康运动生活方式的潮流,建筑空间与运河公园便捷顺畅的联系,又为这一设计主题带来了新的契机。为每个商铺带来的充足的户外空间以及从消费体验出发的空间设计共同构成了建筑空间设计的主线。


◎街角视角
场地南邻运河公园,打破传统用地边界,通过将一条大的景观台阶引入建筑,并在建筑二层入口形成平行于运河公园广场的尺度更加宜人的水院广场,将公园的休闲人群最大限度的引入建筑空间。同时,大台阶本身亦成为运动公园的活动促发器,这里便形成了如西班牙大台阶式的休息交往空间,以及观演活动的天然座位看台。二层建筑主入口的水院广场又为顾客形成遮雨的庇护,水天一色的建筑景观的融合空间设计,亦为这里带来了静谧与运河公园形成氛围对比的新的户外空间,进而带来了空间体验新的可能性,令现代的建筑产生了传统建筑空间建筑与环境充分融合的体验,更好的为建筑吸引人流。

◎社区入口

◎商业街视角-地库入口
大台阶以及二层入口水院广场的设置,同样为三层体量的商业空间带来了双首层的空间模式,优化了尽可能多商业空间的价值,传统商业二层及三层不被重视的空间得以被激活,甚至由于其地标性的存在,得以成为整个商业体中商业价值最高的单铺,也得以在此整体分割出将近1000平米的高价主力店铺面。
而遍布建筑二层三层空间的立体街道,户外庭院,更为相对闭塞的上层商业空间带来了新的价值,成为近似于传统建筑独立院落围合的空间体验,亦呼应了后疫情时代人们拥抱自然健康生活方式的诉求。

◎商业街

◎商业街
在整体容积率不变的情况下,商业空间得以通过空间的设计而加强其商业价值。原本普通的三层社区配套商业,在新的空间模式引导下,既重新诠释了传统建筑空间的自然环境与室内空间的融合感,又激活了原本商业价值不被看好的空间。
02 传统建筑视觉意向的现代诠释——城市地标的建立
盐城的老城具有着鲜明的江南柔和的白墙黛瓦与北方浑厚的砖瓦民居的融合感。而近年来的快速城市更新建设正快速抹去这一特点。以现代的建筑语言与材料重新转译呈现这一特征,同时建立属于盐城的城市地标,在文化传承与商业地标识别性价值上共同发挥作用。


◎如当地民居的山墙
商业空间的吸引人与否,与其可识别性及地标性有巨大关系。一个具有记忆点的商业空间将成为市民口中的典范,成为市民茶余饭后散步的集结地,成为市民拍照发朋友圈的打卡地。而这一切都将促成商业空间自身的商业价值。

◎大台阶
建筑通过在运河公园边树立的具有强烈几何符号性的三角形门架,通过石材、波纹不锈钢、水面、超白玻璃及光影的强烈呈现,抽象了传统盐城建筑连绵起伏如山的黛瓦与三角形坡屋顶的意向,而建筑中水波纹不锈钢,建筑二层主入口空间的水院及超白玻璃的运用又为建筑带来了关于水的场所精神,二者共同为运河公园及东部开发区带来了独一无二的城市地标。
| 结语
大的时代背景为城市文脉的传承及传统实体商业带来重大影响,设计师亦应以专业的视角回应这一变化,为城市文脉传承、实体商业空间的转变、适应新时期发展带来自己的设计上的贡献。无论是从体验出发的为人的使用设计、为流量服务的地标性识别性的建立抑或是为城市文脉延续的文化坚守,设计师都在以自己的方式来应对当下这一时代的巨变。而在未来,时代仍将演进变化,只有不断地客观理性分析,随机应变并坚守初心,才会持续为城市创作出具有时代特点并解决时代难题的建筑。
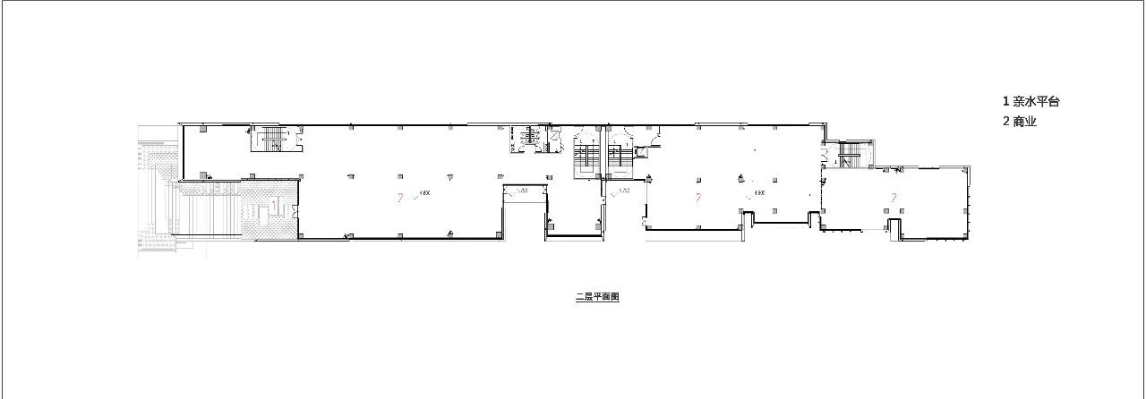
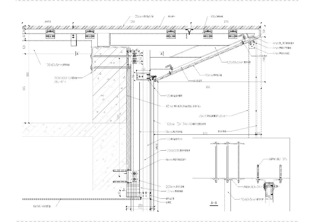
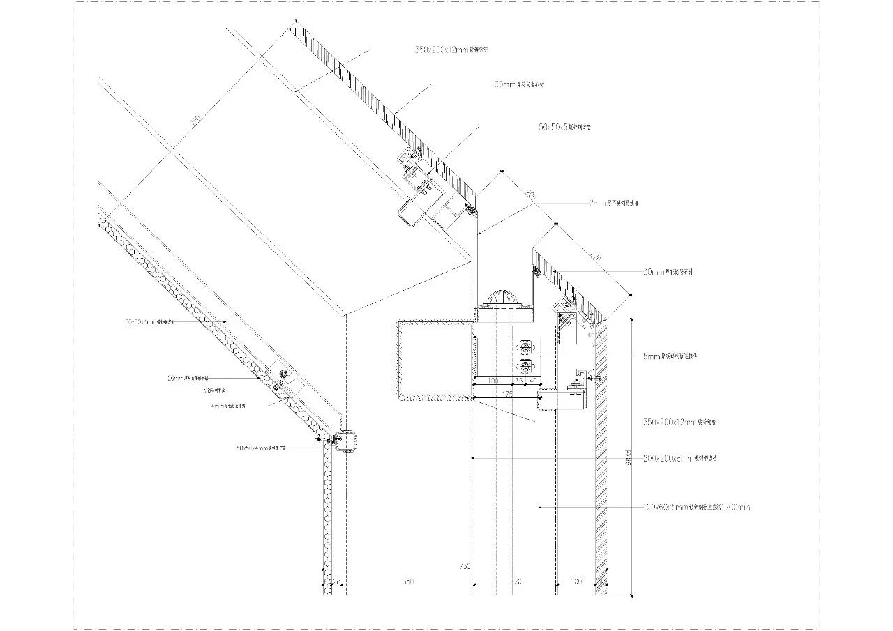
| 技术图纸
工程档案
项目名称 | 盐城东湖心语商业
项目位置 | 江苏盐城
业主单位 | 盐城铭轩房地产开发有限公司
建筑设计 | 上海日清建筑设计有限公司
总建筑师 | 宋照青
商业设计主创 | 强瑞
商业设计团队 | 王春虎
大区负责人 | 沈贤斌,王艺
大区团队 | 王宪栓,蔡浩
项目功能 | 滨水中型商业综合体
建筑面积 | 7500㎡
设计时间 | 2020.12-2021.04
竣工时间 | 2022.04
专业摄影 | 梁山














